SIU Director’s Report - Case # 16-OFD-253
Warning:
This page contains graphic content that can shock, offend and upset.
Contents:
Mandate of the SIU
The Special Investigations Unit is a civilian law enforcement agency that investigates incidents involving police officers where there has been death, serious injury or allegations of sexual assault. The Unit's jurisdiction covers more than 50 municipal, regional and provincial police services across Ontario.
Under the Police Services Act, the Director of the SIU must determine based on the evidence gathered in an investigation whether an officer has committed a criminal offence in connection with the incident under investigation. If, after an investigation, there are reasonable grounds to believe that an offence was committed, the Director has the authority to lay a criminal charge against the officer. Alternatively, in all cases where no reasonable grounds exist, the Director does not lay criminal charges but files a report with the Attorney General communicating the results of an investigation.
Information restrictions
Freedom of Information and Protection of Personal Privacy Act ("FIPPA")
Pursuant to section 14 of FIPPA (i.e., law enforcement), certain information may not be included in this report. This information may include, but is not limited to, the following:
- Confidential investigative techniques and procedures used by law enforcement agencies; and
- Information whose release could reasonably be expected to interfere with a law enforcement matter or an investigation undertaken with a view to a law enforcement proceeding.
Pursuant to section 21 of FIPPA (i.e., personal privacy), protected personal information is not included in this document. This information may include, but is not limited to, the following:
- subject officer name(s)
- witness officer name(s)
- civilian witness name(s)
- location information
- witness statements and evidence gathered in the course of the investigation provided to the SIU in confidence and
- other identifiers which are likely to reveal personal information about individuals involved in the investigation
Personal Health Information Protection Act, 2004 ("PHIPA")
Pursuant to PHIPA, any information related to the personal health of identifiable individuals is not included.
Other proceedings, processes, and investigations
Information may have also been excluded from this report because its release could undermine the integrity of other proceedings involving the same incident, such as criminal proceedings, coroner's inquests, other public proceedings and/or other law enforcement investigations.
Mandate engaged
The Unit's investigative jurisdiction is limited to those incidents where there is a serious injury (including sexual assault allegations) or death in cases involving the police.
This report relates to the SIU's investigation into the death of 36-year-old Anthony Divers, who was shot by a Hamilton Police Service officer just before midnight on September 30, 2016.
The investigation
Notification of the SIU
The SIU was notified of the incident by the Hamilton Police Service (HPS) on October 1, 2016, at 12:56 a.m. HPS advised that it had received a 911 call from a woman who reported that she had been assaulted by a man. Officers attended the area and one officer found the man. Shots were fired and the man was pronounced dead at St. Joseph's Health Centre-Hamilton.
The team
Number of SIU Investigators assigned: 6
Number of SIU Forensic Investigators assigned: 3
SIU Forensic Investigators (FIs) attended the scene, where they identified, preserved, and collected evidence, including two spent 40 calibre cartridges. The FIs made a digital photographic record and drawing of the scene. The FIs also collected the subject officer's uniform components.
Complainant
36-year-old Anthony Divers, deceased
Civilian witnesses
CW #1 Interviewed
CW #2 Interviewed
CW #3 Interviewed
CW #4 Interviewed
CW #5 Interviewed
CW #6 Interviewed
CW #7 Interviewed
CW #8 Interviewed
CW #9 Interviewed
CW #10 Interviewed
CW #11 Interviewed
CW #12 Interviewed
CW #13 Interviewed
CW #14 Interviewed
CW #15 Interviewed
CW #16 Interviewed
CW #17 Interviewed
CW #18 Interviewed
CW #19 Interviewed
CW #20 Interviewed
CW #21 Not interviewed
Witness officers
WO #1 Interviewed
WO #2 Interviewed
WO #3 Interviewed
WO #4 Interviewed
WO #5 Interviewed
WO #6 Interviewed
WO #7 Interviewed
WO #8 Not interviewed, notes received and reviewed
WO #9 Not interviewed, notes received and reviewed
Additionally, the notes from 18 other officers were received and reviewed.
Subject officers
SO Interviewed and notes received and reviewed
Evidence
The scene
The incident occurred on James Street South between the Hunter Street West railway overpass to the north and Augusta Street to the south. James St. South is a commercial and entertainment area, with businesses on both sides of the roadway.
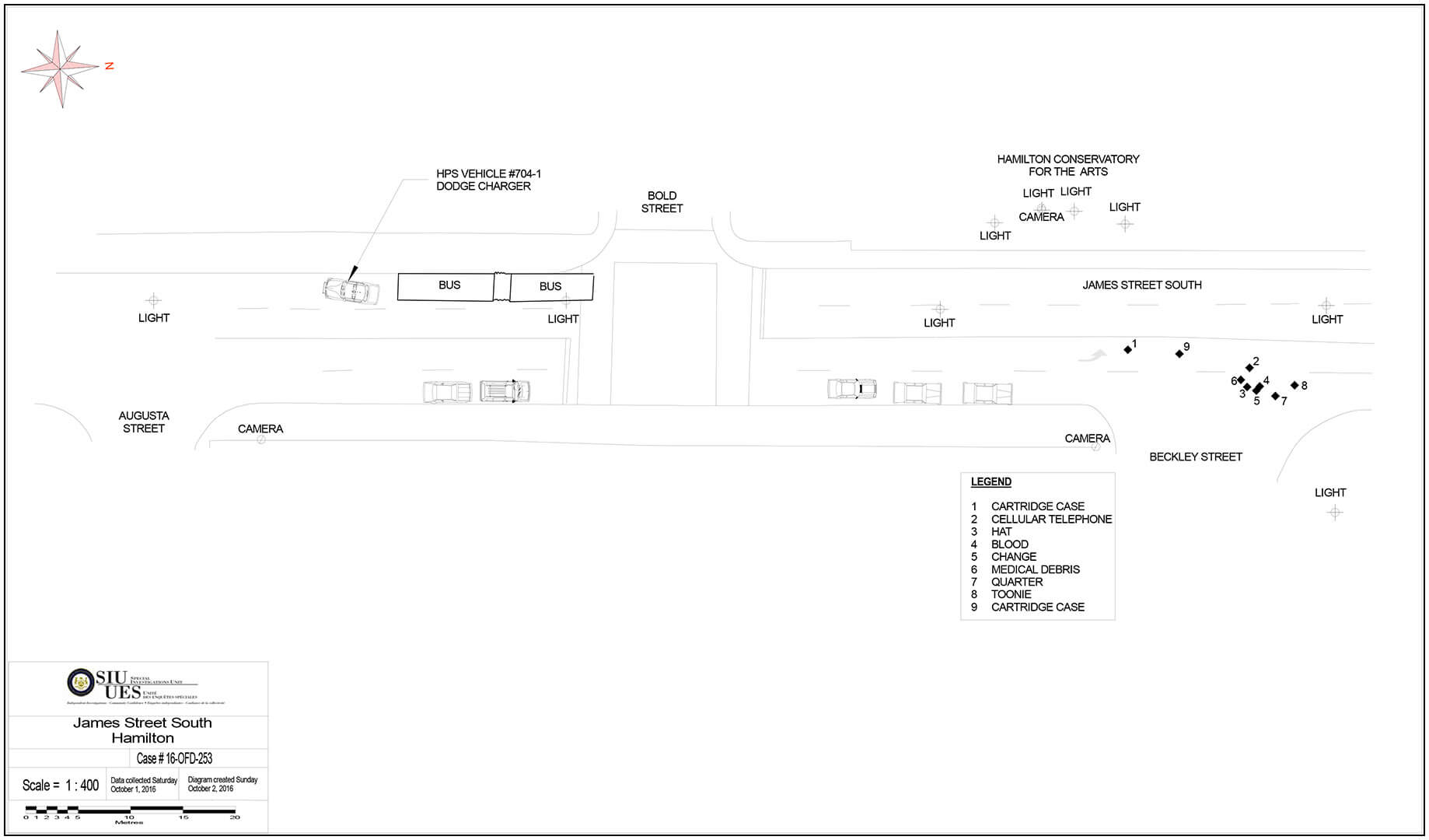
There were two involved vehicles in the scene. One vehicle was a fully marked HPS 2016 Dodge Charger sedan oriented in a southerly direction in the southbound curb lane of James St. South, north of its intersection with Augusta St. The other involved vehicle was a Hamilton Street Railway transit double-length bus. The bus was facing in a southerly direction in the southbound curb lane and to the north of the cruiser.
The FIs prepared a photogrammetry depiction of the scene based upon digital data obtained and reviewed during the investigation. The photogrammetry indicated that the distance between the SO and Mr. Divers when Mr. Divers was shot was approximately 6.35 metres.
Scene diagram

Physical evidence
Firearm – SO
Forensic Investigators collected the SO's HPS-issued Glock firearm and two magazines. These were submitted to the Centre of Forensic Sciences for examination to determine whether the SO's firearm's function and ammunition components were in accordance with Ontario Regulation No. 926.
Cartridge cases
North of the bus and located in the intersection of James St. South and Beckley St. were two 40 calibre cartridge cases. They were in the middle of the passing lane for northbound James St. South traffic.
SO's uniform components
FIs also collected the SO's duty belt, handcuffs, baton, and olio capsicum (pepper) spray.
Other items
North of where the cartridge cases were located was a blood stained cellular telephone on the centre line for northbound James St. South traffic. A black, baseball-player styled hat, an area of bloodstaining, some coins and medical debris, including a canvas bag, straps and a medical blanket, were located in the curb lane for northbound James St. South traffic.
Forensic evidence
The following forensic evidence was submitted to the Centre of Forensic Sciences for analysis:
- blood and tissue specimens collected during the post-mortem examination of Mr. Divers
- the projectile removed from Mr. Divers body during the post-mortem examination
- the SO's firearm, involved magazine, and cartridges
Post-mortem examination
On October 1, 2016, a forensic pathologist conducted the post-mortem examination of Mr. Divers. The forensic pathologist determined the cause of death as one lethal gunshot wound to the torso with a destructive injury to the heart, aorta, and left lung. The projectile was a copper jacketed deformed bullet that was recovered in the left latissimus dorsi muscle of the left side of the back. Neither of Mr. Divers' ankles exhibited evidence of acute or remote fractures[1].
Toxicology report
Post-mortem toxicology testing detected blood concentration of Methamphetamine and Amphetamine within the range expected following recreational use as well as small amounts of Tetrahydrocannabinol (THC).
Video evidence
The SIU canvassed the area for any photos, video, or audio recordings. The following videos were located, collected, and analyzed.
Chateau Royale CCTV Data
CCTV cameras from the Chateau Royal condominium building on the east side of James St. South, south of the Hunter St. West railway overpass, recorded information relevant to this investigation. Specifically, the images captured occurred on September 30, 2016 between 11:49 p.m. and 11:55 p.m. Both Mr. Divers and the SO can be seen in this video. Both men are out of range of the camera at the moment the SO's firearm is discharged.
Hamilton Conservatory for the Arts CCTV Data
CCTV cameras from the Hamilton Conservatory for the Arts (HCA) on the west side of James St. South, south of the Hunter St. West railway overpass, recorded information relevant to this investigation. Specifically, the images captured occurred on September 30, 2016 between 11:48 p.m. and 11:53 p.m. This video captures images of most of the interaction between Mr. Divers and the SO, including the moment when the SO discharges his firearm.
Communications recordings
The SIU collected audio recordings of police communications as well as 911 calls relevant to the incident.
Materials obtained from the Hamilton Police Service
Upon request, the SIU obtained and reviewed the following materials and documents from the HPS:
- SO's notes
- notes from 27 witness officers
- all Mobile Data Terminal (MDT) transmissions
- dispatch report to 524 Main St. East, Hamilton
- scene drawings (2)
- event chronologies (3)
- occurrence reports for that evening (2)
- occurrence reports (from Mr. Divers' previous contact with police)
- Global Positioning System (GPS) data for SO's police vehicle
- Hamilton Homicide Sudden Death Report
- Hamilton Subject Profile Report
- HPS Policy and Procedure on use of force
Incident narrative
On September 30, 2016, at 11:35 p.m., Hamilton Police Service received a 911 call from a woman who reported that she had been assaulted outside a bar located at Catharine Street North and King William Street.
Witness officer #3 (WO #3) arrived at the bar, confirmed the woman suffered a serious injury to her left cheek, took a statement from the woman, and determined there were reasonable grounds to arrest Anthony Divers for assault. WO #3 noted the following information about Mr. Divers, which was provided to the officer and to the 911 call taker:
- there was a no contact order between Mr. Divers and the woman
- there had been violence between Mr. Divers and the woman in the past and it had been reported to police
- Mr. Divers was possibly high on Crystal Meth and Fentanyl
- Mr. Divers was anti-police
- earlier that day, Mr. Divers had showed the woman a Glock firearm he had in his pants
Officers were dispatched to search for Mr. Divers.
At approximately 11:45 p.m., the SO located Mr. Divers on the west side of James Street South standing on the sidewalk near a bus shelter. The SO sent a radio transmission informing other officers of Mr. Divers' whereabouts.
The SO then drove in front of a bus that was approaching the bus stop and stopped his cruiser, blocking the bus. The SO signaled for the bus driver to stop and the driver did so.
Mr. Divers started to walk briskly northbound on the sidewalk alongside of the bus. The SO exited his cruiser and began walking quickly after Mr. Divers. The SO officer yelled at Mr. Divers to "stop" and "get down".
Throughout the tail end of the interaction, Mr. Divers' right hand remained under his sweatshirt.
Mr. Divers entered the roadway and walked into the northbound lanes of James St. South, towards the railway overpass.
The SO continued to follow, unholstering his firearm and pointing it at Mr. Divers while several times commanding Mr. Divers to show his hands.
With the SO still south of Mr. Divers, Mr. Divers turned and faced the SO. He then lifted his right hand under his sweater and walked two steps towards the SO.
The SO discharged his firearm twice. Mr. Divers fell to the ground and rolled several times. Other police officers arrived and started to administer first aid.
Mr. Divers was pronounced dead at hospital at 12:25 a.m.
Relevant legislation
Section 25(1) and (3), Criminal Code - Protection of persons acting under authority
25 (1) Every one who is required or authorized by law to do anything in the administration or enforcement of the law
- as a private person,
- as a peace officer or public officer,
- in aid of a peace officer or public officer, or
- by virtue of his office,
is, if he acts on reasonable grounds, justified in doing what he is required or authorized to do and in using as much force as is necessary for that purpose.
When not protected
(3) Subject to subsections (4) and (5), a person is not justified for the purposes of subsection (1) in using force that is intended or is likely to cause death or grievous bodily harm unless the person believes on reasonable grounds that it is necessary for the self-preservation of the person or the preservation of any one under that person's protection from death or grievous bodily harm.
Section 34(1), Criminal Code – Defence of Person
Defence — use or threat of force
34 (1) A person is not guilty of an offence if
- they believe on reasonable grounds that force is being used against them or another person or that a threat of force is being made against them or another person;
- the act that constitutes the offence is committed for the purpose of defending or protecting themselves or the other person from that use or threat of force; and
- the act committed is reasonable in the circumstances.
Factors
(2) In determining whether the act committed is reasonable in the circumstances, the court shall consider the relevant circumstances of the person, the other parties and the act, including, but not limited to, the following factors:
(a) the nature of the force or threat;
(b) the extent to which the use of force was imminent and whether there were other means available to respond to the potential use of force;
(c) the person's role in the incident;
(d) whether any party to the incident used or threatened to use a weapon;
(e) the size, age, gender and physical capabilities of the parties to the incident;
(f) the nature, duration and history of any relationship between the parties to the incident, including any prior use or threat of force and the nature of that force or threat;
(f.1) any history of interaction or communication between the parties to the incident;
(g) the nature and proportionality of the person's response to the use or threat of force; and
(h) whether the act committed was in response to a use or threat of force that the person knew was lawful.
Analysis and Director’s decision
Turning first to the lawfulness of Mr. Divers' apprehension, it is clear from the statement made by the woman who called 911 that there were reasonable grounds to believe that Mr. Divers had assaulted the woman contrary to s.266 of the Criminal Code. As such, the pursuit and apprehension of Mr. Divers was legally justified in the circumstances.
The questions I must determine on the basis of the above noted legislative provisions are whether the SO
- reasonably believed that he was at risk of death or grievous bodily harm from Mr. Divers at the time that he discharged his firearm; and
- whether that belief was objectively reasonable, or, in other words, whether his actions would be considered reasonable by an objective bystander who had all of the information available to the SO at the time that he discharged his firearm.
With respect to the first of these criteria, it is clear the SO believed he was at risk of death or grievous bodily harm at the time he discharged his firearm. He based that belief on both his observations at the time and his knowledge of Mr. Divers' past behaviour.
On one prior occasion, when he had contact with Mr. Divers, the SO learned that
- Mr. Divers was anti-police and very violent
- he had killed an individual and spent significant time incarcerated for manslaughter
- he was involved in organized crime
- he was abusing narcotics and that he was getting into a dangerous lifestyle
With respect to the information received by the SO on the date in question, the SO was made aware that Mr. Divers had earlier that evening punched a woman in the face, that he might be armed with a firearm, and that he was high on meth.
Through his police training, the SO was further aware that the most common place for a person to secrete a firearm was in his waistband, both for concealment purposes and for easy accessibility, and that the way in which Mr. Divers was running was consistent with someone who was concealing a firearm. In the moments leading up to the discharge of the SO's firearm, the SO observed that
- Mr. Divers was completely unresponsive to the SO's commands
- he was unable to de-escalate the situation due to Mr. Divers failure to engage with the SO at all
- when Mr. Divers suddenly stopped and faced the SO, he hunched forward and lifted his sweater up with his left hand while his right hand was in the centre/front area of his waistband concealed from view, leading the SO to believe that Mr. Divers was holding the firearm, of which he had previously been informed, in his right hand
- the front of Mr. Divers' sweater, over his right hand, was tented as if he had a firearm in his hand under his sweater
- Mr. Divers seemed oblivious to the SO's commands and seemed completely indifferent to the situation with no regards for his own life or for that of the SO
When Mr. Divers had whatever he had concealed in his sweater pointed directly at the SO, and was looking directly at the officer, the SO indicated that he had passed the threshold for risk tolerance and discharged his firearm.
On all of the information that the SO had in his possession at the time he shot and killed Mr. Divers, I find that the SO, subjectively, had reasonable grounds to believe that his life was at risk from Mr. Divers and that Mr. Divers' actions, as well as the information that he had earlier that day been in possession of a firearm, would have reasonably caused the SO to believe that Mr. Divers was about to shoot him.
With respect to whether or not there were objectively reasonable grounds to believe that the SO's life was at risk, although many of the witnesses confirm the location of Mr. Divers' right hand inside his sweater and/or waist area and the movement that he made towards the SO, it is the evidence of CW #4 that I find definitively satisfies the objective test of whether or not there were reasonable grounds to believe that SO's life was at risk. I find that the statement of CW #4 that he was certain that Mr. Divers was getting out a gun to shoot the SO and the SO had no other option remaining to him other than to fire upon Mr. Divers due to the fact that Mr. Divers was himself reaching for his weapon, makes the actions of the SO objectively reasonable. I find that this conclusion is further supported by the fact that CW #4 came to the same conclusion as did the SO, despite the fact that CW #4 did not have access to all of the information about Mr. Divers' violent antecedent nor did he know about his possession of a gun that morning, and yet he still came to the exact same determination as to what was about to occur; that being that there was going to be a gun fight and that the SO was left with the only option to either shoot, or be shot, by Mr. Divers.
In considering the reasonableness of the SO's actions and whether or not he considered the use of less lethal use of force options before resorting to his firearm, it should be noted that the SO had
- called for other officers to assist in apprehending Mr. Divers
- matched Mr. Divers' pace to maintain operational distance for their mutual safety
- issued numerous commands for Mr. Divers to show his hands and get down, all to no avail, and
- considered deployment of his CEW, but rejected it on the basis that the tenting at the front of Mr. Divers' sweater would have rendered the CEW ineffective
On that basis, it is clear the SO exercised all due caution in dealing with Mr. Divers and considered all of his options before he discharged his firearm.
Having extensively reviewed all of the evidence, and the law relating to the justification in using force intended to cause death or grievous bodily harm when one believes on reasonable grounds that it is necessary for one's self-preservation from death or grievous bodily harm, I find in all the circumstances, that despite the after the fact knowledge that Mr. Divers was not armed, the SO reasonably believed that his life was in danger from Mr. Divers and his actions in firing upon Mr. Divers were justified. I find that the SO did not have the luxury of delaying and risking his own life by waiting to see if a shot was actually fired from whatever weapon that Mr. Divers was intimating that he had hidden inside his waistband or sweater; and I find that risk was not one that the SO was required to have had to take when faced with a possible "gun fight" with a man who, by all appearances, was very possibly armed and was an imminent danger to the SO.
I find, therefore, on this record, that the shot that was fired and which struck and killed Mr. Divers was justified pursuant to s.25(1) and (3) and s.34 of the Criminal Code and that the SO, in preserving himself from death or grievous bodily harm from Mr. Divers, used no more force than was necessary to effect his lawful purpose. As such, I am therefore satisfied on reasonable grounds on this record that the actions exercised by the SO fell within the limits prescribed by the criminal law and there are no grounds for proceeding with criminal charges in this case.
Date: August 1, 2017
Original signed by
Tony Loparco
Director
Special Investigations Unit
Endnotes
- 1) [1] This evidence contradicts reports from a civilian witness to the effect that Mr. Divers had a broken ankle on the day of the shooting. [Back to text]
Note:
The signed English original report is authoritative, and any discrepancy between that report and the French and English online versions should be resolved in favour of the original English report.