Rapport du directeur de l’Unité des enquêtes spéciales - Dossier nº 17-OCI-064
Attention :
Cette page affiche un contenu graphique pouvant choquer, offenser et déranger.
Contenus:
Mandat de l’UES
L'Unité des enquêtes spéciales (« l' UES » ou « l'Unité ») est un organisme civil d'application de la loi qui mène des enquêtes sur les incidents à l'origine de blessures graves, de décès ou d'allégations d'agressions sexuelles, dans lesquels des agents de police sont en cause. La compétence de l'Unité s'étend à plus de 50 corps de police municipaux, régionaux et provinciaux dans l'ensemble de l'Ontario.
En vertu de la Loi sur les services policiers, le directeur de l' UES doit déterminer, d'après les preuves recueillies dans une enquête, si un agent a commis une infraction criminelle en rapport avec l'incident faisant l'objet de l'enquête. Si à la suite de l'enquête, il existe des motifs raisonnables de croire qu'une infraction a été commise, le directeur a le pouvoir de déposer un chef d'accusation à l'encontre de l'agent. Subsidiairement, s'il n'y a aucun motif raisonnable de croire qu'une infraction criminelle a été commise, le directeur ne dépose pas d'accusation, mais remet un rapport au procureur général pour l'informer des résultats de l'enquête.
Restrictions concernant la divulgation de renseignements
Loi sur l'accès à l'information et la protection de la vie privée (La « LAIPVP »)
En vertu de l'article 14 de la LAIPVP (article relatif à l'application de la loi), certains renseignements peuvent être omis du présent rapport, notamment s'il est raisonnable de s'attendre à ce que leur divulgation ait pour effet, selon le cas :
- de révéler des techniques et procédés d'enquête confidentiels utilisés par des organismes chargés de l'exécution de la loi;
- de faire obstacle à une question qui concerne l'exécution de la loi ou à une enquête menée préalablement à une instance judiciaire.
En vertu de l'article 21 de la LAIPVP (article relatif à la vie privée), le présent rapport ne contient aucun renseignement personnel protégé, notamment :
- le nom de tout agent impliqué
- le nom de tout agent témoin
- le nom de tout témoin civil
- les renseignements sur le lieu de l'incident
- les déclarations des témoins et les éléments de preuve qui ont été fournis à l' UES à titre confidentiel dans le cadre de l'enquête
- d'autres identifiants susceptibles de révéler des renseignements personnels sur les personnes concernées par l'enquête.
Loi de 2004 sur la protection des renseignements personnels sur la santé (« LPRPS »)
En vertu de la LPRPS, le présent document ne contient aucun renseignement personnel sur la santé de personnes identifiables.
Autres instances, processus et enquêtes
Il se peut que certains renseignements aient été omis du présent rapport parce que leur divulgation pourrait compromettre l'intégrité d'autres procédures liées au même incident, par exemple des procédures pénales, des enquêtes du coroner, d'autres instances publiques ou d'autres enquêtes menées par des organismes d'application de la loi.
Exercice du mandat
La compétence d'enquête de l'Unité se limite aux incidents impliquant la police et qui ont causé un décès ou une blessure grave ou ont donné lieu à une allégation d'agression sexuelle.
Les « blessures graves » englobent celles qui sont susceptibles d'avoir des répercussions sur la santé ou le bien-être de la victime et dont la nature est plus que passagère ou insignifiante; elles comprennent les blessures graves résultant d'une agression sexuelle. Il y aura, a priori, présomption de « blessures graves » si la victime est hospitalisée, souffre d'une fracture d'un membre, d'une côte, d'une vertèbre ou du crâne, souffre de brà»lures sur une grande partie du corps, a perdu une partie du corps, la vue ou l'ouà¯e, ou encore si elle allègue qu'elle a été agressée sexuellement. Si un long délai est à prévoir avant que la gravité de la blessure puisse être évaluée, l'Unité devrait en être avisée pour qu'elle puisse surveiller la situation et décider de l'envergure de son intervention.
Ce rapport décrit l'enquête de l'UES sur la blessure grave subie par un homme de 25 ans lors de son arrestation le 2 avril 2017.
L’enquête
Notification de l'UES
Le 2 avril 2017, à 21 h 30, la Police régionale de Peel (PRP) a informé l'UES de la blessure subie par le plaignant pendant son arrestation.
La PRP a signalé qu'à 13 h 30 le dimanche 2 avril 2017, l'Unité tactique et de sauvetage (UTS) est intervenue dans une maison de chambres à Mississauga suite à un appel signalant qu'un homme armé d'un couteau [dont on sait aujourd'hui qu'il s'agissait du plaignant] s'était introduit par effraction dans la résidence. On a trouvé le plaignant dans la résidence. La police a eu recours à une arme à impulsions, et le plaignant a été plaqué au sol et mis en état d'arrestation.
Puis, le plaignant a été amené à l'hôpital, où selon le diagnostic posé, il avait une fracture à l'os orbital gauche.
L'équipe
Nombre d'enquêteurs de l'UES assignés : 4
Nombre d'enquêteurs judiciaires de l'UES assignés : 2
Les enquêteurs judiciaires de l'UES se sont rendus sur les lieux de l'incident et ont repéré et préservé les preuves. Ils ont documenté les lieux pertinents de l'incident au moyen de notes, de photographies, de croquis et de mesures.
Plaignant
Entretien avec l'homme âgé de 25 ans, obtention et examen des dossiers médicaux
Témoins civils (TC)
TC no 1 A participé à une entrevue
TC no 2 A participé à une entrevue
Agents témoins (AT)
AT n° 1 A participé à une entrevue
AT no 2 A participé à une entrevue
AT no 3 A participé à une entrevue
AT no 4 A participé à une entrevue
AT no 5 A participé à une entrevue
AT no 6 A participé à une entrevue
AT no 7 A participé à une entrevue
Agents impliqués (AI)
AI no 1 A participé à une entrevue; ses notes ont été reçues et examinées
AI no 2 A participé à une entrevue, mais n'a pas consenti à remettre ses notes, comme la loi l'y autorise en tant qu'agent impliqué
AI no 3 N'a pas consenti à participer à une entrevue et à remettre ses notes, comme la loi l'y autorise en tant qu'agent impliqué
Description de l’incident
L'après‐midi du 2 avril 2017, le plaignant s'est rendu à la résidence du TC no 2 à Mississauga. Le TC no 2 n'y était pas. Le TC no 1 a vu le plaignant entrer dans la résidence par la porte avant, qui était déverrouillée, prendre un couteau à beurre dans la cuisine et l'utiliser pour ouvrir la porte verrouillée de la chambre à coucher du TC no 2. Le TC no 1 habitait également dans la résidence et a affirmé à la police et aux enquêteurs de l'UES qu'il n'avait aucune idée qui était le plaignant. Le TC no 1 est allé parler au plaignant, qui lui a dit qu'il avait la permission du TC no 2 d'être dans la résidence. Le plaignant est entré dans la chambre à coucher du TC no 2 et s'est endormi sur un matelas sur le sol. Le TC no 1 a appelé le numéro 9‐1‐1 et a signalé qu'un inconnu était entré dans la résidence et avait utilisé un couteau pour pénétrer dans une chambre à coucher et s'était enfermé à l'intérieur.
Plusieurs agents de police de la PRP, y compris ceux de l'UTS, se sont rendus à la résidence et ont tenté de convaincre le plaignant de sortir de la chambre. Le plaignant n'a pas répondu aux agents. Comme le plaignant avait toujours le couteau dans la chambre, l'AI no 1 craignait qu'il se soit barricadé à l'intérieur ou qu'il ait pris quelqu'un en otage. L'AI no 2 s'est présenté à la porte de la chambre à coucher et a frappé, et la porte s'est ouverte toute seule de manière inattendue. Le plaignant était couché sur un matelas, avait une couverture tirée sur lui, et ses mains se trouvaient sous son corps. L'AI no 1, l'AI no 2, l'AI no 3 et l'AT no 6 sont entrés dans la chambre et ont ordonné au plaignant de montrer ses mains. Le plaignant a ignoré les ordres des agents.
Les AI nos 1, 2 et 3 ont tous déchargé leurs armes à impulsions sur le plaignant. L'AI no 2 a également donné un coup de pied dans la direction du bras du plaignant, dans l'espoir de lui faire lâcher prise du couteau au cas où il le tenait toujours, mais au lieu de cela, a atteint le côté de la tête du plaignant. Un agent dont l'identité n'a pas été établie a frappé le plaignant au visage avec son poing. Le plaignant a été traîné du matelas, puis menotté et tourné sur le dos. Il avait des blessures faciales évidentes.
Des ambulanciers paramédicaux sont venus sur place et ont transporté le plaignant à l'hôpital. D'après le diagnostic, il avait une fracture à la paroi orbitale inférieure gauche et une fracture à la paroi du sinus maxillaire gauche.
Preuve
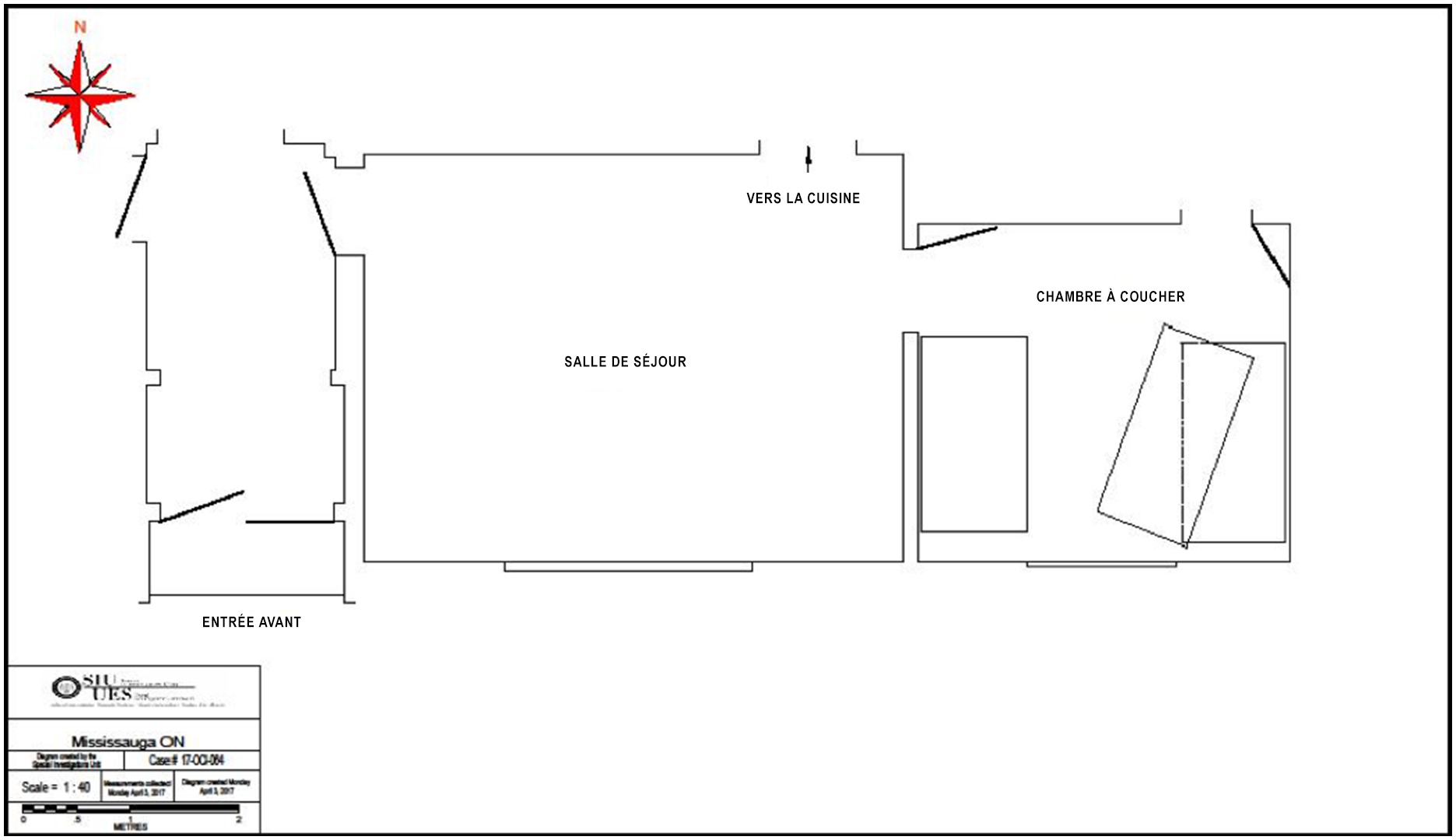
Les lieux de l'incident
La résidence est une maison de chambres à deux étages comportant de multiples chambres à coucher et située sur le côté nord de la rue. Lorsqu'on entre par la porte avant (au sud), on pénètre dans un hall commun. Du côté droit, on accède à la salle de séjour et au côté est de celle‐ci, il y a la porte donnant accès à la chambre à coucher où a lieu l'interaction.
La cuisine est accessible à partir du côté nord de la salle de séjour, mais on peut s'y rendre également à partir du hall près de l'entrée. Dans la cuisine, il y a des armoires et un comptoir contre le mur nord. Sur le comptoir, il y avait un égouttoir comportant de nombreux ustensiles et assiettes.
La chambre en question occupe le coin sud‐est du rez‐de‐chaussée. La porte est munie d'un loquet verrouillable. La gâche dans le montant de la porte était endommagée, et il y avait une vis sur le sol directement en dessous.
Dans la chambre à coucher, il y avait deux matelas et sommiers à ressorts devant les murs est et ouest. Le lit au mur ouest était relativement bien fait. Le matelas devant le mur est était retourné et le sommier à ressorts se trouvait par‐dessus et légèrement en biais. Des articles vestimentaires avaient été jetés sur le sol, où il y avait également un téléphone cellulaire et une variété de cartes.
Sur le dessus du matelas du côté ouest, il y avait un couteau à beurre à manche vert d'une longueur totale de 22,5 cm. Sur le sol entre les deux matelas, il y avait de nombreux éléments d'armes à impulsions déchargées. On y voyait également des petits morceaux de fil d'armes à impulsions. Il y avait six portes de décharge, des séparateurs en plastique et des protège-dards sur le sol.
Schéma des lieux

Preuve matérielle
Le couteau
Voici une photographie du couteau saisi dans la chambre à coucher :

Données téléchargées des armes à impulsions
Le 3 avril 2017, les enquêteurs ont examiné les armes à impulsions et ont téléchargé les fichiers d'utilisation, dont les données ont révélé ce qui suit :
L'AI no 1 a déchargé son arme à impulsions une seule fois pendant cinq secondes.

L'AI no 2 a déchargé son arme à impulsions trois fois : la première fois pendant cinq secondes, la seconde fois, pendant neuf secondes, et la troisième fois, pendant trois secondes.

L'AI no 3 a déchargé son arme à impulsions une seule fois, pendant cinq secondes.

Rapport de l'appel au service des ambulances
À 14 h 23, le 2 avril 2017, une ambulance des Services paramédicaux régionaux de Peel (SPRP) s'est rendue à une résidence à Mississauga pour s'occuper du plaignant. Le plaignant, à qui les agents avaient passé des menottes souples, était en la compagnie de membres de l'UTS de la PRP. Le plaignant a informé les ambulanciers paramédicaux qu'il avait été arrêté le 1er avril 2017 par la PRP et avait passé la nuit en détention policière.
Il a informé les ambulanciers paramédicaux qu'il s'était présenté au tribunal le matin du 2 avril 2017, d'où il avait été libéré, et puis s'était rendu chez un ami [dont on sait maintenant qu'il s'agissait du TC no 2]. Son ami n'était pas à la maison, de sorte que le plaignant s'est couché et s'est endormi.
Les ambulanciers paramédicaux ont appris de la PRP qu'elle avait reçu un appel concernant un homme [dont on sait maintenant qu'il s'agissait du plaignant] qui n'habitait pas à l'adresse et qui avait pénétré dans une chambre dans la propriété et avait refusé de la quitter. La PRP a dit aux ambulanciers paramédicaux que l'UTS était entrée dans la pièce dans laquelle se trouvait le plaignant. Une arme à impulsions avait été utilisée contre le plaignant et il avait subi des traumatismes au visage.
Lorsque les ambulanciers paramédicaux ont examiné le plaignant, ils ont constaté qu'il était alerte, qu'il savait où il était et que sa respiration était normale sans présenter des signes évidents de détresse respiratoire. Le principal problème du plaignant était qu'il avait des traumatismes et de la douleur au visage. Le plaignant avait des enflures et des contusions aux deux yeux, mais aucune douleur au cou. Il avait également de l'inflammation et de la rougeur à l'oreille gauche et derrière celle‐ci. Le plaignant n'avait pas de douleur abdominale, n'avait pas la nausée et ne vomissait pas.
Les ambulanciers paramédicaux ont découvert des plaies perforantes du côté gauche de l'abdomen du plaignant et à son avant‐bras droit. Il avait de la rougeur au dos, mais aucune douleur à cet endroit. Les ambulanciers paramédicaux ont découvert un peu de sang sec sur l'abdomen du plaignant, mais aucun autre signe de traumatisme. Le plaignant a été transporté par ambulance à l'hôpital.
Preuve vidéo/audio/photographique
L'UES a inspecté les lieux pour déterminer s'il y avait des enregistrements vidéo ou audio et des preuves photographiques, mais n'a pas réussi à en trouver.
Enregistrements des communications
Enregistrements des communications au numéro 9‐1‐1 de la PRP
Le TC no 1 a appelé le numéro 9‐1‐1 et a signalé qu'un homme inconnu avait pénétré dans sa résidence, avait pris un couteau dans la cuisine et avait forcé la porte verrouillée d'une chambre à coucher.
[Traduction]
Préposé au numéro 9‐1‐1
9‐1‐1, souhaitez-vous parler à la police, au service des incendies ou au service des ambulances?
TC no 1
À la police.
Préposé au numéro 9‐1‐1
Ici la police, quelle est la nature de votre urgence?
TC no 1
Oui, il y a un gars ici qui est vient d'entrer dans la maison et puis, a ouvert des portes avec un couteau... je ne sais pas qui il est.
Préposé au numéro 9‐1‐1
D'où appelez-vous?
TC no 1
[Adresse de la résidence].
Préposé au numéro 9‐1‐1
D'accord, et vous habitez à cet endroit... d'accord, et qui est donc cette personne qui se trouve dans votre maison?
TC no 1
Je ne la connais pas.
Communications radio à la suite de l'appel au numéro 9‐1‐1 de la PRP
Les enquêteurs ont examiné les communications radio de la PRP et ont conclu que leur contenu correspondait à celui de l'appel au numéro 9‐1‐1 :
Répartiteur radio
Appel lancé à toutes les unités, [adresse de la résidence], rez‐de‐chaussée; l'appelant a dit qu'un homme inconnu vient de pénétrer dans la maison, qu'il a saisi un couteau de cuisine, s'est rendu à une chambre à coucher, et tente d'utiliser le couteau pour déverrouiller la porte de la chambre à coucher. L'appelant attend maintenant à l'extérieur, parce qu'il n'y a personne d'autre dans la maison... 21‐110;
Répartiteur radio
Je veux juste vous informer qu'un appel venant du [adresse de la résidence]. Un homme... un homme inconnu est entré dans la maison, a pris un couteau dans la cuisine, s'est rendu à l'une des chambres à coucher et essaye de déverrouiller la porte. Il n'y a personne d'autre dans la maison, l'appelant est à l'extérieur.
AT no 4
10‐4... veuillez noter que je m'y rends. S'il vous plaît, informez l'UTS et obtenez l'historique récent de la maison.
10‐4... veuillez informer l'UTS que nous allons créer un périmètre jusqu'à ce que nous réussissions à établir le contact avec la personne et à déterminer ce qui se passe. Quand la personne sort, nous devrons prendre une décision à ce moment‐là . Je serai en chemin.
Répartiteur radio
UTS‐1... 10‐4... on va intervenir au... [adresse de la résidence]. Un homme inconnu est entré dans la résidence, a saisi ce qui semble être un couteau à beurre dans la cuisine et est monté pour tenter d'entrer dans l'une des chambres.
AT no 1
110, je vous informe que j'entends la voix d'un homme dans la maison, mais il n'a répondu à aucune des annonces faites par la police.
AI no 1
Veuillez juste confirmer... (inaudible)... veuillez appeler les ambulanciers, s'il vous plaît, et une unité canine (K9).
AT no 4
Salutations aux agents; pourriez-vous parler aux autres occupants qui sont là avec vous pour établir qui est l'occupant de la chambre et où il est peut-être à l'heure actuelle? Obtenez un nom afin que nous puissions commencer à faire quelques démarches pour obtenir de l'information.
Les agents ont bouclé une pièce. Ils sont à l'intérieur de la maison et la personne d'intérêt est dans une chambre, la porte est fermée et elle ne communique pas, mais il est important pour l'UTS de savoir qu'il n'y a aucune autre façon d'entrer dans cette pièce ou d'en sortir, c'est‐à ‐dire qu'il faut passer par la porte où se trouvent les agents.
AI no 1
UTS‐1, nous continuons à appeler la personne.
UTS‐1, il n'y a toujours pas de réponse et nous frappons maintenant à la porte.
UTS‐1, nous avons quelqu'un en détention... blessure à l'Å“il, et des armes à impulsions ont été utilisées contre le suspect.
Dossiers obtenus du service de police
Sur demande, l'UES a obtenu les documents suivants de la PRP et puis les a examinés :
- enregistrements des communications
- rapport du registre des activités
- rapport des communications audio – appels au numéro 9‐1‐1
- rapport des communications audio – répartition et transmissions radio
- rapport des communications audio – communications radio de l'unité tactique 1
- chronologie des événements
- notes des AT nos 1, 2, 3, 4, 5, 6 et 7
- rapports d'incident détaillés
- rapport détaillé sur le prisonnier
- procédure – recours à la force
- procédure – alerte d'incident critique
- déclarations de témoins civils à la PRP – TC no1 et TC no 2
- dossiers de formation – AI no1, AI no 2 et AI no
Lois pertinentes
Paragraphe 25(1) du Code criminel - Protection des personnes autorisées
25 (1) Quiconque est, par la loi, obligé ou autorisé à faire quoi que ce soit dans l'application ou l'exécution de la loi :
- soit à titre de particulier
- soit à titre d'agent de la paix ou de fonctionnaire public
- soit pour venir en aide à un agent de la paix ou à un fonctionnaire public
- soit en raison de ses fonctions
est, s'il agit en s'appuyant sur des motifs raisonnables, fondé à accomplir ce qu'il lui est enjoint ou permis de faire et fondé à employer la force nécessaire pour cette fin.
Analyse et décision du directeur
Le 2 avril 2017, à 13 h 30 m 42 s, le préposé au numéro 9‐1‐1 de la PRP a reçu un appel du TC no 1, qui demandait l'aide de la police et qui a expliqué qu'il était un résident dans une maison dans la ville de Mississauga et qu'un homme venait d'y entrer et avait ouvert la porte de l'une des chambres à coucher en utilisant un couteau. Le TC no 1 a indiqué que cette personne lui était inconnue. Par conséquent, un message a été diffusé informant toutes les unités qu'un inconnu venait d'entrer dans la résidence et avait saisi un couteau dans la cuisine et s'en servait pour tenter de déverrouiller la porte d'une chambre à coucher. De nombreuses unités sont intervenues et le plaignant a fini par être arrêté et retiré de la résidence, après quoi il a été transporté à l'hôpital où, selon le diagnostic posé, il avait une fracture à la paroi orbitale inférieure gauche et une fracture à la paroi du sinus maxillaire gauche.
Dans sa déclaration aux enquêteurs, le plaignant a allégué qu'il avait la permission du TC no 2 d'être dans la maison et dans la chambre à coucher, mais n'a pas nié avoir utilisé un ustensile pour déverrouiller la chambre à coucher et pour y entrer. Le plaignant ne s'est pas souvenu que quelqu'un aurait frappé à la porte. Il a allégué qu'il s'était réveillé lorsque plusieurs agents de police le battaient et que ces agents de police l'avaient alors traîné du matelas sur le plancher et avaient utilisé leurs armes à impulsions contre lui à plusieurs reprises.
Dans sa déclaration à la PRP, le TC no 1 a indiqué que, l'après‐midi du 2 avril 2017, il était à l'adresse où il résidait, lorsqu'il a vu un homme qu'il ne connaissait pas sortir d'un taxi devant sa résidence, entrer dans la maison par la porte avant déverrouillée et pénétrer dans la cuisine. Le TC no 1 a vu l'homme prendre un couteau à beurre et puis se rendre à la chambre à coucher du TC no 2 et se servir du couteau pour déverrouiller la porte. Le TC no 1 a indiqué qu'il avait tenté d'arrêter l'homme et qu'il lui avait dit qu'il ne pouvait pas agir ainsi et que s'il continuait, il appellerait la police. L'homme lui avait répondu qu'il pouvait appeler la police s'il le souhaitait et qu'il avait la permission du TC no 2 d'entrer dans la chambre à coucher. Le TC no 1 a appelé le numéro 9‐1‐1. Comme le confirme clairement l'enregistrement, le TC no 1 n'a jamais informé la police que l'homme lui avait dit qu'il avait la permission du TC no 2 d'entrer dans sa chambre.
À la suite de la diffusion du message concernant la présence d'un homme inconnu armé d'un couteau dans la résidence et demandant l'intervention de toutes les unités disponibles, onze agents de la PRP se sont rendus à la résidence, y compris l'AI no 1, qui était membre de l'UTS, et l'inspecteur de service.
Après le message général diffusé à toutes les unités, un message distinct a été envoyé à l'AT no 4, qui a demandé que l'on informe l'UTS et qui a indiqué qu'il attendrait jusqu'à ce que le premier agent à arriver sur les lieux l'informe de ce qui se passait. Une autre conversation entre le préposé aux appels au numéro 9‐1‐1 et le TC no 1 a permis d'obtenir de l'information additionnelle de la part de ce dernier, qui a décrit le couteau saisi comme un couteau à beurre et qui, en réponse à la question de savoir s'il s'agissait ou non d'une maison de chambres, a affirmé [traduction] « Pas vraiment », puisque seulement trois personnes y habitaient. Le TC no 1 a répété plusieurs fois au préposé au numéro 9-1-1 qu'il n'avait jamais vu l'homme auparavant et qu'il n'avait aucune idée de qui il s'agissait.
L'AT no 1 était le premier agent à arriver sur les lieux, suivi de l'AT no 3 quelques secondes plus tard. Tandis que l'AT no 3 couvrait l'arrière de la résidence, l'AT no 1 est allé rencontrer le TC no 1, qui a répété l'information qu'il avait fournie dans son appel au numéro 9‐1‐1. Le TC no 1 a confirmé que l'homme était toujours dans la chambre à coucher et a montré à l'AT no 1 où elle se trouvait. Puis, l'AT no 2 s'est joint à l'AT no 1 à l'intérieur de la résidence et a annoncé plusieurs fois à voix haute que la police était présente dans la résidence à quiconque était dans la chambre à coucher, mais il n'a reçu aucune réponse. L'AT no 1 a attendu l'arrivée d'unités additionnelles tout en continuant à observer la chambre à coucher avec l'AT no 2, qui avait dégainé son arme à impulsions. À partir de cet endroit, l'AT no 1 pouvait entendre la personne dans la chambre à coucher parler dans un téléphone cellulaire.
L'AT no 4 a indiqué que pendant qu'il se dirigeait vers l'adresse, il avait demandé à l'UTS de s'y rendre en raison de l'information selon laquelle l'homme dans la maison avait une arme tranchante. À son arrivée à la résidence vers 13 h 46, l'AT no 4 a rencontré les agents sur les lieux et s'est assuré que la maison était évacuée. À 13 h 50, l'AI no 1 et l'AT no 5, tous deux membres de l'UTS, sont arrivés à l'adresse et les agents se sont placés à des endroits de confinement dans la résidence. L'AT no 2 a informé l'AI no 1 qu'il était pas mal certain que l'homme était dans la chambre à coucher, puisqu'il avait entendu une voix venant de l'intérieur, mais qu'il n'y avait pas eu de réponse à son annonce, et il ne pouvait donc pas confirmer si le résident était également dans la chambre à coucher.
Se basant sur l'information qu'il avait reçue, l'AI no 1 était d'avis que l'appel au numéro 9‐1‐1 concernait soit un homme barricadé, soit une situation de prise d'otage, puisque l'homme était entré dans la résidence alors que des personnes s'y trouvaient, avait saisi un couteau et était entré dans la chambre à coucher. L'AI no 1 a demandé à l'AT no 5 d'annoncer à quiconque se trouvait dans la chambre à coucher que l'UTS de la PRP était sur place et que l'homme devait sortir de la pièce les mains en l'air. À ce moment‐là , l'AI no 1 a informé le personnel médical de l'UTS, l'unité K9 et l'inspecteur de service de la situation. L'inspecteur de service s'est rendu sur les lieux et y a rencontré l'AI no 1. Ils ont formulé un plan qui consisterait à appeler l'occupant et, si cela échouait, à frapper à la porte en utilisant un bouclier. En cas d'échec, on forcerait la porte et on tenterait de maîtriser le plaignant, tout en gérant le temps et la distance. L'inspecteur de service a autorisé l'exécution de ce plan. L'équipe est entrée dans la maison et se composait de l'AT no 6 muni d'un bouclier, de l'AI no 2 armé d'une arme à feu longue, de l'AI no 3 muni de l'équipement de forçage, et de l'AI no 1. Chaque agent était équipé également de moyens de recours à la force meurtriers et non meurtriers, y compris de leurs armes à feu de service et armes à impulsions; deux armes à feu antiémeutes non létales (ARWEN), tirant des balles en plastique, étaient également disponibles dans la maison.
À 14 h 30, l'AI no 1 et l'équipe sont entrés dans la maison, et l'AT no 6 a crié [traduction] « Venez à la porte » et « Répondez à ma voix », mais il n'y avait aucune réponse. L'AT no 3, qui se trouvait à l'extérieur de la fenêtre de la chambre à coucher du TC no 2, a indiqué qu'elle pouvait clairement entendre les multiples cris venant de la maison et qu'elle n'avait jamais entendu de réponse.
À 14 h 31, des membres de l'UTS ont avancé dans la file, et l'AI no 2 a frappé à la porte avec son pied, laquelle porte s'est ouverte de façon inattendue, et les agents ont vu que le plaignant était couché sur le matelas le plus éloigné, sur son côté droit, et qu'il avait le dos tourné aux agents de police. Le plaignant avait une couverture tirée sur lui, et ses mains n'étaient pas visibles. L'AT no 6 a crié pour laisser savoir aux autres membres de l'équipe que le plaignant avait été aperçu, tandis que l'AI no 2 s'est concentré sur ce dernier. Puis, l'AI no 2 a crié [traduction] « Montrez‐moi vos mains » et « Laissez‐moi voir vos mains », et le plaignant a levé la tête, a regardé les agents de police et puis s'est de nouveau tourné, en ne faisant pas attention à eux. À aucun moment, le plaignant a obtempéré ou a donné d'indication qu'il avait entendu les ordres de la police.
L'AI no 2 a précisé qu'étant donné qu'il n'avait pas trouvé le couteau, il s'inquiétait de la sécurité de l'équipe ainsi que de sa propre sécurité, et a crié à nouveau [traduction] « Montrez‐moi vos mains » et « Laissez‐moi voir vos mains », toujours sans recevoir de réponse. L'AI no 1 a indiqué que tous les membres de l'UTS criaient au plaignant de montrer ses mains et que le plaignant était réveillé et les regardait, mais qu'il avait tiré la couverture par‐dessus son corps, ce qui empêchait les agents de voir ses mains. À ce moment‐là , l'AI no 2 a utilisé son arme à impulsions contre le plaignant, mais elle semblait être inefficace et il n'y avait aucune réaction. L'AI no 2 a déchargé son arme à impulsions une seconde fois, mais de nouveau elle semblait inefficace, probablement à cause des couvertures et des articles vestimentaires qui empêchaient les dards d'entrer en contact avec le plaignant. L'AI no 1 a vu l'AI no 3 utiliser lui aussi son arme à impulsions et a constaté qu'elle n'avait pas eu l'effet voulu puisque le corps du plaignant ne s'était pas raidi. L'AI no 1 s'est alors placé entre l'AI no 2 et l'AI no 3 et a retiré la couverture du plaignant, après quoi le plaignant a baissé ses mains vers sa taille et l'AI no 1 a déchargé son arme à impulsions. Cette fois-là , l'arme à impulsions était efficace et le corps du plaignant était devenu raide. L'AI no 1 a indiqué que s'il avait utilisé son arme à impulsions, c'était parce qu'il s'agissait d'une option de recours à la force moins létale et parce que le plaignant n'obtempérait pas et qu'il fallait procéder à sa mise sous garde, du fait qu'il ne savait pas où était le couteau ni de quel genre de couteau il s'agissait.
L'AI no 1 a expliqué qu'après cinq secondes, dès que la décharge de son arme à impulsions avait cessé, le plaignant avait de nouveau baissé les mains et avait reçu l'ordre de les garder en l'air, mais il avait continué de les amener vers sa taille, auquel moment on l'a traîné du lit sur le plancher, où il a atterri sur le ventre avec les deux bras bloqués sous le corps. L'AI no 1 n'était pas sà»r si le visage du plaignant avait heurté le plancher lorsqu'on l'avait ainsi tiré du matelas.
L'AI no 2 a expliqué qu'il avait vu de multiples fils d'armes à impulsions mélangés dans la couverture et sous le plaignant et qu'il ne voulait pas y placer sa main, parce qu'il risquait de recevoir un choc venant des fils, si l'arme à impulsions était toujours active. L'AI no 2 a observé le plaignant tentant de se lever du sol en poussant son corps et, en essayant de faucher le bras gauche du plaignant avec son pied droit pour l'empêcher de se lever, l'AI no 2 avait accidentellement heurté le plaignant au côté gauche de son visage, alors qu'il bougeait sa botte et que le plaignant tournait la tête en même temps. L'AI no 2 a précisé qu'il avait donné un coup de pied de pleine force au bras droit du plaignant afin d'essayer de contrôler ce bras et que sa botte avait alors touché le visage du plaignant du côté gauche et qu'il se pouvait que ce coup ait causé la blessure à l'Å“il gauche. L'AI no 2 a indiqué que le plaignant avait continué de résister activement et qu'il avait de nouveau placé les mains sous son corps, en dépit d'ordres constants lui demandant de montrer ses mains et d'arrêter de résister. En raison de cela, l'AI no 2 a retiré la cartouche de son arme à impulsions et a essayé d'envoyer une décharge en mode contact au bas du dos du plaignant en espérant qu'ainsi les agents parviennent à le maîtriser. Une fois de plus, l'arme à impulsions semblait n'avoir que peu d'effet sur le plaignant.
L'AI no 2 a indiqué qu'il avait été témoin d'un coup donné au plaignant pour le distraire, mais que dans la mêlée, il ne pouvait déterminer qui l'avait porté. Le coup était décrit par l'AI no 2 comme un coup de poing qui avait touché le côté droit du visage du plaignant.
Puis, l'AI no 1 a sauté sur le dos du plaignant et a placé son genou contre son dos pour l'empêcher de se lever ou de sortir ses bras de sous son corps. À ce moment‐là , L'AI no 1 n'était pas sà»r si le plaignant était armé. Pendant que l'AI no 1 tentait de retirer le bras gauche du plaignant de sous son corps, l'AI no 3 essayait de retirer l'autre bras et finalement, les agents sont parvenus à maîtriser et à menotter le plaignant.
Les données téléchargées de l'arme à impulsions de l'AI no 2 confirment que celui-ci l'a utilisée à trois reprises le 2 avril, initialement, pendant cinq secondes, puis pendant neuf secondes et une dernière fois, pendant trois secondes. Les données téléchargées de l'arme à impulsions de l'AI no 3 confirment que celui-ci l'a utilisée une seule fois pendant cinq secondes. Les données téléchargées de l'arme à impulsions de l'AI no 1 confirment que ce dernier l'a utilisée pendant cinq secondes.
Dans ce dossier, il n'est pas clair si le TC no 1 a délibérément omis de fournir de l'information ou a tenté d'induire la police en erreur lorsqu'il lui a dit que l'homme qui était entré dans sa maison était un inconnu et qu'il n'avait [traduction] « aucune idée » de son identité, en dépit du fait que le plaignant était un visiteur fréquent dans la chambre du TC no 2 et qu'il y avait logé par le passé pendant une période allant jusqu'à dix jours, et lorsqu'il a affirmé que la résidence n'était pas une maison de chambres et, finalement, lorsqu'il n'a pas informé la police que le plaignant semblait être [traduction] « dans un état anormal » et lui avait dit qu'il avait la permission du TC no 2 d'utiliser la pièce. Ce qui est tout aussi déconcertant est la déclaration du TC no 2 à la PRP que personne n'avait la permission d'être dans sa chambre, alors que plus tard, il a déclaré aux enquêteurs de l'UES que le plaignant avait sa permission d'utiliser sa chambre à coucher et avait déjà logé chez lui pendant une période allant d'une semaine à dix jours.
Ce qui est clair toutefois, c'est que la PRP a réagi de façon appropriée, compte tenu de l'information à sa disposition et en conformité avec la politique de la police lorsqu'elle a reçu de l'information qu'un étranger était apparemment entré dans une résidence privée par la porte avant, qui était déverrouillée, s'était armé d'un couteau, s'était introduit par effraction dans une chambre à coucher et puis s'y était enfermé, et que la police avait pris la situation au sérieux. Il est clair que la police n'avait pas le luxe de rester les bras croisés et d'attendre, alors qu'elle avait connaissance d'information qu'un homme armé se trouvait dans une chambre verrouillée et qu'elle ne pouvait confirmer si le résident de la chambre s'y trouvait également avec cet homme et courait un danger.
En vertu du paragraphe 25(1) du Code criminel, les agents de police peuvent seulement recourir à la force qui est raisonnablement nécessaire dans l'exécution d'une obligation légale. Je me pencherai d'abord sur la légalité de l'appréhension du plaignant. D'après les renseignements fournis au préposé au numéro 9‐1‐1 et répétés plus tard par le TC no 1 aux agents qui sont intervenus en réponse à l'appel, les agents avaient des motifs raisonnables de croire qu'un homme inconnu était entré sans permission dans une résidence privée, qu'il avait refusé de quitter les lieux lorsqu'il en avait reçu l'ordre d'un résident dans la maison, qu'il s'était armé d'un couteau et qu'il s'était enfermé dans une chambre à coucher, possiblement avec le résident légal de celle‐ci et qu'il avait refusé de répondre à de nombreux ordres hauts et clairs l'intimant de sortir et de s'identifier. Ainsi, il est clair que les agents avaient des motifs raisonnables de croire qu'à tout le moins, le plaignant était entré sans autorisation dans la propriété et avait refusé de partir lorsqu'on le lui avait ordonné, mais ils avaient également des motifs raisonnables de croire que le plaignant était entré par effraction dans une résidence, était armé d'une arme dangereuse et, comme l'a indiqué l'AI no 1, soit s'était barricadé dans la pièce, soit avait peut‐être pris en otage l'occupant légitime de la pièce. Par conséquent, l'appréhension du plaignant était non seulement justifiée légalement dans les circonstances, mais les agents de police auraient manqué à leur devoir s'ils n'avaient pas enquêté sur les circonstances et n'auraient pas assuré la sécurité de toutes les personnes qui se trouvaient peut-être dans la pièce avec le plaignant. Tandis qu'après coup, il semble que l'information fournie par le TC no 1 était peut‐être fausse ou du moins incomplète, la police n'avait pas le loisir de prendre cette chance et ainsi de mettre la vie des résidents de la maison en danger.
En ce qui a trait à la force employée par les policiers dans leurs tentatives d'appréhender et puis de maîtriser le plaignant, je conclus que leur conduite était justifiée dans les circonstances et qu'ils n'ont pas employé plus de force que nécessaire pour arrêter le plaignant en toute sécurité. D'après la preuve, il est clair que les policiers ont épuisé toutes les options pour convaincre le plaignant, en toute sécurité et en utilisant le moins de force possible, de sortir de la pièce verrouillée et de venir leur parler. Leurs actions ont évolué; ils ont commencé par appeler le plaignant et par s'identifier comme des agents de police et puis ont demandé au plaignant de sortir et de montrer ses mains et ensuite ont frappé à la porte et sont entrés dans la chambre à coucher tout en continuant de crier des ordres au plaignant, le tout pour assurer un heureux dénouement de la situation. Il est clair et confirmé par l'ensemble des agents qui se trouvaient soit à l'intérieur, soit à l'extérieur de la résidence que les ordres criés par un grand nombre des agents de police sur une longue période étaient fort et clairs et pouvaient être entendus aussi bien à l'intérieur qu'à l'extérieur de la résidence. Bien qu'il ne soit pas clair pourquoi le plaignant n'a pas répondu aux ordres, ce qui est clair est que tous les policiers ont fait tous les efforts possibles pour entrer en contact avec le plaignant, sans y parvenir. De toute évidence, cela aurait éveillé chez eux d'autres doutes quant à ce qui se passait dans la chambre à coucher verrouillée, compte tenu de l'information en leur possession qu'un homme dans la pièce était armé d'un couteau et à la lumière de l'information fournie par le TC no 1 que l'homme lui était inconnu.
Il est raisonnable de penser qu'après que les agents de police sont entrés dans la pièce, le comportement du plaignant, qui refusait de montrer ses mains et qui faisait fi des ordres répétés par les agents, a suscité de la préoccupation chez ces derniers concernant ses intentions et la question de savoir s'il avait une arme sous sa couverture et s'il présentait une menace pour eux. De plus, la résistance du plaignant aux décharges des armes à impulsions aurait naturellement créé de la crainte chez les agents, qui pensaient qu'ils ne seraient peut‐être pas en mesure de maîtriser le plaignant, qui semblait ne pas ressentir les effets des différentes options de recours à la force moins létales. Même après que la couverture avait été retirée du plaignant et que l'AI no 2 avait placé son arme à impulsions directement contre lui, la décharge ne semble n'avoir eu qu'un effet très limité.
Dans cette affaire, je conclus que les actions des agents ont progressé de façon mesurée et proportionnée en réponse à la résistance du plaignant et au risque auquel les agents pensaient faire face, à la lumière de l'information qui leur avait été fournie par le TC no 1. En outre, je note qu'aussi bien l'AI no 1 que l'AI no 2 ont indiqué que, lorsqu'ils avaient finalement réussi à communiquer avec le plaignant, il leur semblait qu'il était sous l'effet de drogue ou d'alcool ou souffrait d'une quelconque maladie mentale, impression que semblent confirmer les observations du TC no 1; je note en outre l'indifférence apparente du plaignant aux décharges des armes à impulsions et le fait qu'il était intensément inconscient de tout ce qui se passait autour de lui; ces activités ont été décrites par divers agents comme bruyantes, manifestes et transparentes et pas du tout silencieuses ni clandestines. À moins d'être dans le coma ou dans un état mental particulier causé par de la drogue, il est difficile de comprendre comment le plaignant aurait pu être inconscient à ce point de l'importante activité policière qui se déroulait autour de lui.
Je conclus, compte tenu de la preuve devant moi, que le plaignant a très probablement reçu sa blessure lorsque l'AI no 2, en tentant de balayer son bras gauche afin qu'on puisse le maîtriser, l'a frappé de pleine force et par inadvertance au visage avec sa botte, bien qu'il soit possible que la blessure ait été causée par le coup donné par l'un des agents pour distraire le plaignant, tel que rapporté par l'AI no 2, ou lorsque le plaignant est tombé sur le ventre sur le plancher lorsqu'on l'a traîné du matelas. Quelle que soit l'origine de sa blessure, il est clair qu'elle a été causée par les actions des policiers lorsqu'ils tentaient de l'appréhender et, même si je conclus que sa blessure a été causée par la police, je conclus qu'en vertu du paragraphe 25(1) du Code criminel, les agents en cause n'ont pas utilisé plus de force que raisonnablement nécessaire dans l'exercice de leurs fonctions légitimes au moment de l'arrestation d'un intrus dans une résidence privée qui risquait d'être armé et contre qui de nombreuses utilisations d'armes à impulsions s'étaient révélées inefficaces. Pour en arriver à cette conclusion, je suis conscient que l'intervention des agents était motivée par l'information en leur possession à l'époque, selon laquelle le plaignant risquait d'être armé et d'être dangereux, et par le fait que la situation évoluait très rapidement et que les agents avaient un sentiment de danger accru, en raison des renseignements qui leur avaient été fournis et en raison de la réaction ou du manque de réaction du plaignant.
De plus, je garde à l'esprit l'état du droit énoncé par la Cour suprême du Canada dans R. c. Nasogaluak, [2010] 1 C.S.C. 206, qui dit ceci :
Les actes des policiers ne devraient pas être jugés au regard d'une norme de perfection. Il ne faut pas oublier que ceux‐ci accomplissent un travail exigeant et dangereux et qu'ils doivent souvent réagir rapidement à des situations urgentes. Leurs actes doivent alors être appréciés selon ce que commande ce contexte difficile. Comme l'a expliqué le juge Anderson dans l'affaire R. c. Bottrell (1981), 60 C.C.C. (2d) 211 (C.A.C.-B.) :
Pour déterminer si la force employée par le policier était nécessaire, les jurés doivent tenir compte des circonstances dans lesquelles le policier y a eu recours. Il aurait fallu leur indiquer qu'on ne pouvait s'attendre à ce que l'appelant mesure la force appliquée avec précision. [p. 218]
Par ailleurs, j'ai pris en considération la décision rendue par la Cour d'appel de l'Ontario dans l'affaire R. c. Baxter (1975), 27 C.C.C. (2d) 96 (C.A. de l'Ont.) qu'on ne peut pas s'attendre à ce que les policiers apprécient avec exactitude le degré de force qu'ils emploient dans leur intervention. Dans le présent dossier, il est clair que la force employée par les membres de l'UTS pour appréhender et maîtriser en toute sécurité le plaignant était dans les limites de ce qui était raisonnablement nécessaire dans les circonstances pour procéder à sa mise sous garde légale et supprimer le risque qu'il continuait de poser tant qu'il restait dans une pièce verrouillée et parce qu'il était peut-être armé.
En dernière analyse, je suis convaincu, pour les raisons qui précèdent, que la mise sous détention du plaignant et la façon dont elle a été effectuée étaient légitimes malgré la blessure qu'il a subie. Je suis donc convaincu, pour des motifs raisonnables, que les gestes posés par les agents étaient dans les limites prescrites par le droit criminel et qu'il n'y a pas de motifs de porter des accusations en l'espèce.
Date : 31 janvier 2018
Original signé par
Tony Loparco
Directeur
Unité des enquêtes spéciales
Note:
La version originale anglaise signée du rapport fait autorité. En cas de divergence entre cette version et les versions anglaise ou française en ligne, la version originale anglaise signée du rapport l’emporte.