Rapport du directeur de l’Unité des enquêtes spéciales - Dossier nº 17-OCI-081
Attention :
Cette page affiche un contenu graphique pouvant choquer, offenser et déranger.
Contenus:
Mandat de l’UES
L'Unité des enquêtes spéciales (« l' UES » ou « l'Unité ») est un organisme civil d'application de la loi qui mène des enquêtes sur les incidents à l'origine de blessures graves, de décès ou d'allégations d'agressions sexuelles, dans lesquels des agents de police sont en cause. La compétence de l'Unité s'étend à plus de 50 corps de police municipaux, régionaux et provinciaux dans l'ensemble de l'Ontario.
En vertu de la Loi sur les services policiers, le directeur de l' UES doit déterminer, d'après les preuves recueillies dans une enquête, si un agent a commis une infraction criminelle en rapport avec l'incident faisant l'objet de l'enquête. Si à la suite de l'enquête, il existe des motifs raisonnables de croire qu'une infraction a été commise, le directeur a le pouvoir de déposer un chef d'accusation à l'encontre de l'agent. Subsidiairement, s'il n'y a aucun motif raisonnable de croire qu'une infraction criminelle a été commise, le directeur ne dépose pas d'accusation, mais remet un rapport au procureur général pour l'informer des résultats de l'enquête.
Restrictions concernant la divulgation de renseignements
Loi sur l'accès à l'information et la protection de la vie privée (La « LAIPVP »)
En vertu de l'article 14 de la LAIPVP (article relatif à l'application de la loi), certains renseignements peuvent être omis du présent rapport, notamment s'il est raisonnable de s'attendre à ce que leur divulgation ait pour effet, selon le cas :
- de révéler des techniques et procédés d'enquête confidentiels utilisés par des organismes chargés de l'exécution de la loi;
- de faire obstacle à une question qui concerne l'exécution de la loi ou à une enquête menée préalablement à une instance judiciaire.
En vertu de l'article 21 de la LAIPVP (article relatif à la vie privée), le présent rapport ne contient aucun renseignement personnel protégé, notamment :
- le nom de tout agent impliqué
- le nom de tout agent témoin
- le nom de tout témoin civil
- les renseignements sur le lieu de l'incident
- les déclarations des témoins et les éléments de preuve qui ont été fournis à l' UES à titre confidentiel dans le cadre de l'enquête
- d'autres identifiants susceptibles de révéler des renseignements personnels sur les personnes concernées par l'enquête.
Loi de 2004 sur la protection des renseignements personnels sur la santé (« LPRPS »)
En vertu de la LPRPS, le présent document ne contient aucun renseignement personnel sur la santé de personnes identifiables.
Autres instances, processus et enquêtes
Il se peut que certains renseignements aient été omis du présent rapport parce que leur divulgation pourrait compromettre l'intégrité d'autres procédures liées au même incident, par exemple des procédures pénales, des enquêtes du coroner, d'autres instances publiques ou d'autres enquêtes menées par des organismes d'application de la loi.
Exercice du mandat
La compétence d'enquête de l'Unité se limite aux incidents impliquant la police et qui ont causé un décès ou une blessure grave ou ont donné lieu à une allégation d'agression sexuelle.
Les « blessures graves » englobent celles qui sont susceptibles d'avoir des répercussions sur la santé ou le bien-être de la victime et dont la nature est plus que passagère ou insignifiante; elles comprennent les blessures graves résultant d'une agression sexuelle. Il y aura, a priori, présomption de « blessures graves » si la victime est hospitalisée, souffre d'une fracture d'un membre, d'une côte, d'une vertèbre ou du crâne, souffre de brà»lures sur une grande partie du corps, a perdu une partie du corps, la vue ou l'ouà¯e, ou encore si elle allègue qu'elle a été agressée sexuellement. Si un long délai est à prévoir avant que la gravité de la blessure puisse être évaluée, l'Unité devrait en être avisée pour qu'elle puisse surveiller la situation et décider de l'envergure de son intervention.
Ce rapport décrit l'enquête de l'UES sur la blessure grave subie par un homme âgé de 27 ans lors de son interaction avec la police le 17 avril 2017.
L’enquête
Notification de l'UES
Le 17 avril 2017, à 17 h 10, le Service de police de Windsor (SPW) a avisé l'UES de la blessure subie par le plaignant lors de sa mise sous garde.
Le SPW a indiqué que des agents étaient intervenus parce qu'une personne s'était barricadée dans une résidence à Windsor, à 14 h 50, le même jour. À 16 h 10, le plaignant est sorti avec plusieurs blessures infligées avec un objet pointu à sa cuisse droite. Le plaignant a été amené à l'hôpital à Windsor.
L'équipe
Nombre d'enquêteurs de l'UES assignés : 3
Nombre d'enquêteurs spécialistes des sciences judiciaires de l'UES assignés : 2
Les enquêteurs judiciaires de l'UES se sont rendus sur les lieux de l'incident et ont repéré et préservé les éléments de preuve. Ils ont documenté les scènes pertinentes liées à l'incident au moyen de notes, de photographies, de vidéographie, de croquis et de mesures.
Plaignant :
Entretien avec l'homme âgé de 27 ans, obtention et examen des dossiers médicaux
Témoins civils (TC)
TC no 1 A participé à une entrevue
TC no 2 A participé à une entrevue
Agents témoins (AT)
AT n° 1 A participé à une entrevue
AT n° 2 A participé à une entrevue
AT n° 3 A participé à une entrevue
De plus, les notes de quatre autres agents non désignés et les déclarations préparées de trois autres agents non désignés ont été reçues et examinées.
Agents impliqués (AI)
AI N'a pas participé à une entrevue, comme la loi l'y autorise en tant qu'agent impliqué. Des notes et une déclaration préparée ont été reçues et examinées.
Description de l’incident
L'après-midi du 17 avril 2017, le plaignant a informé le TC no 1 qu'il allait se suicider. Il s'est alors poignardé dans la cuisse deux fois. Le TC no 1 a appelé le numéro 9‐1‐1 et l'AI, l'AT no 1, l'AT no 2 et l'AT no 3 se sont rendus sur les lieux. Initialement, le plaignant était réticent à ouvrir la porte de l'appartement aux agents. À la suite de négociations et de communications continuelles entre les agents, le plaignant et le TC no 1, le plaignant a fini par ouvrir la porte et a permis aux ambulanciers paramédicaux de traiter les blessures qu'il s'était infligées. Puis, il a été transporté à l'hôpital, où ses plaies ont été suturées. Un formulaire a été établi pour le plaignant en vertu de la Loi sur la santé mentale (LSM)[1] et le plaignant a été gardé à l'hôpital pour y être évalué.
Preuve
Les lieux de l'incident
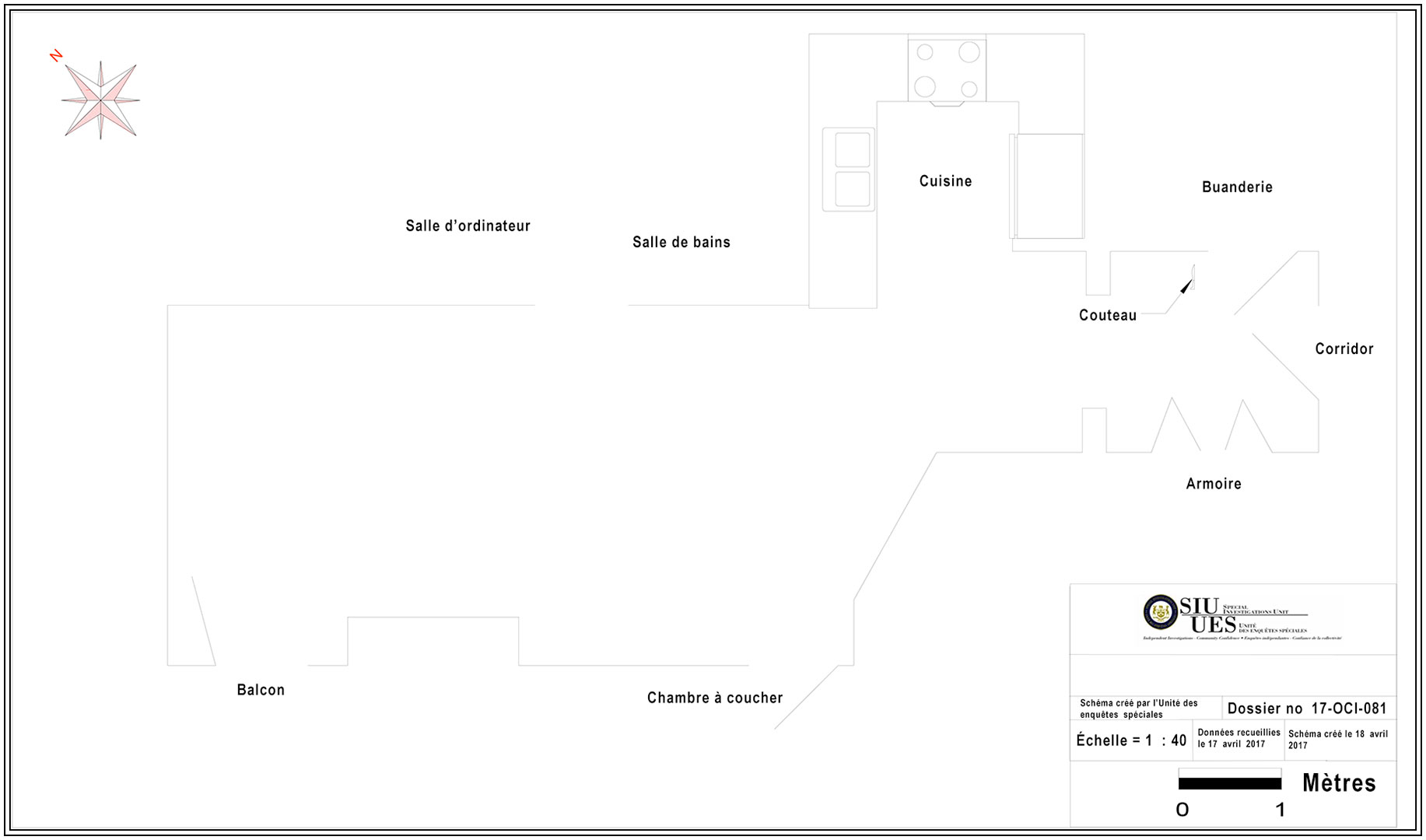
L'incident est survenu au 4e étage d'un immeuble à appartements à Windsor (Ontario). Il y avait des taches de sang sur le tapis dans le corridor menant à la porte du plaignant et devant celle‐ci ainsi que des détritus médicaux (emballage) devant la porte. Deux articles vestimentaires fortement imbibés de sang et des gants bleus en nitrile jetés se trouvaient sur le tapis devant la porte. Il y avait également deux feuilles de papier blanc sur le sol dans le corridor. Il s'agissait de reçus d'ordonnances, datés de plusieurs jours auparavant, concernant des médicaments émis au nom du plaignant.
Il n'y avait aucun dommage visible à la porte ni au mécanisme de verrouillage. Le carrelage dans le hall était couvert de sang sec et de sang qui séchait. De nombreuses empreintes de pied ayant transféré du sang étaient visibles à différents endroits dans l'appartement se dirigeant vers la porte d'entrée et s'éloignant de celle-ci. Un canif noir entièrement déplié se trouvait sur le sol près d'une porte partiellement ouverte (buanderie). Il y avait de nombreux documents bancaires et emballages de pilules (cinq) sur une table en verre dans le salon.
Il y avait des empreintes de pied ayant transféré du sang se dirigeant vers une porte de balcon ouverte et à partir de celle‐ci. Il y avait également de telles empreintes menant au salon et à la salle de bains adjacente à la chambre principale et à partir de ces pièces. Il n'y avait pas de notes ni de documents apparents suggérant que le plaignant voulait se faire du tort ou faire du tort à d'autres personnes. Aucun autre couteau ou instrument tranchant couvert de sang n'était visible ou n'a été trouvé sur les lieux.
Schéma des lieux

Preuve matérielle
Le couteau saisi par l'UES sur les lieux de l'incident :

à‰léments de preuve sous forme de vidéos, d'enregistrements audio et de photographies
L'UES a inspecté les lieux pour déterminer s'il y avait des enregistrements vidéo ou audio et des preuves photographiques, mais n'a pas réussi à en trouver.
Enregistrements des communications
Les enregistrements des communications pertinentes remontant au 17 avril 2017, faites entre 14 h 50 m 20 s et 16 h 19 m 20 s ont révélé ce qui suit :
- à 14 h 50 m 20 s, le répartiteur a diffusé un appel concernant un homme suicidaire [désigné ultérieurement comme le plaignant] dans un immeuble à appartements à Windsor. Selon l'information fournie, le plaignant avait communiqué avec son père pour l'informer qu'il s'était coupé et qu'il allait se suicider
- à 14 h 53 m 22 s, l'AT no3 a informé le répartiteur qu'il était sur place
- à 14 h 56 m 23 s, l'AT no1 a informé le répartiteur qu'il était sur les lieux
- à 14 h 59 m 59 s, l'AT no3 a signalé au répartiteur qu'il pouvait entendre le plaignant parler à l'intérieur de son appartement
- à 15 h 00 m 47 s, l'AT no3 a demandé que l'AI apporte le passe-partout à l'appartement du plaignant
- à 15 h 04 m 01 s, le répartiteur a informé l'AT no3 que le porte-clé était en voie d'être amené au quatrième étage
- à 15 h 06 m 47 s, l'AT no3 a demandé au répartiteur de communiquer avec le TC no 1 pour établir si le plaignant s'était coupé
- à 15 h 07 m 08 s, l'AT no3 a signalé au répartiteur qu'il avait frappé à la porte de l'appartement du plaignant et que le plaignant refusait d'en sortir
- à 15 h 14 m 00 s, l'AT no3 a informé le répartiteur qu'il pouvait entendre le plaignant à l'intérieur de l'appartement. Le plaignant avait une arme à la main et était prêt à se défendre si la police y pénétrait
- à 15 h 17 m 26 s, le répartiteur a informé les agents de police qu'on avait communiqué avec le TC no1 et que ce dernier avait dit que le plaignant s'était poignardé
- à 15 h 28 m 08 s, l'AT no3 a fait savoir au répartiteur que le plaignant agissait de façon irrationnelle. Il a déclaré que le plaignant lui avait dit que si la police entrait dans l'appartement, il y aurait un « combat »
- à 15 h 45 m 59 s, le plaignant a dit aux agents de police sur place que [traduction] « il allait mourir ici maintenant »
- à 16 h 09 m 29 s, un agent de police a informé le répartiteur qu'il fallait faire venir des ambulanciers paramédicaux au quatrième étage et que les agents étaient en contact avec le plaignant
- à 16 h 10 m 40 s, les unités de police sur les lieux ont informé le répartiteur que les ambulanciers paramédicaux étaient avec le plaignant
- l'enregistrement s'est terminé à 16 h 19 m 20 s
à‰léments obtenus du service de police
L'UES a demandé au SPW les documents et éléments suivants, qu'elle a obtenus et examinés :
- enregistrements des communications
- répartition assistée par ordinateur
- consultation du Centre d'information de la police canadienne (CIPC) – plaignant
- notes des AT nos 1, 2 et 3
- notes de quatre agents non désignés
- déclarations rédigées de l'AI, de l'AT no 1 et de l'AT no 2
- déclarations rédigées de trois agents non désignés
- copie papier de l'appel au SPW
Analyse et décision du directeur
Le 17 avril 2017, à 14 h 50 m 20 s, le Service de police de Windsor (SPW) a reçu un appel au numéro 9‐1‐1 du TC no 1 demandant que la police se rende à un appartement dans la ville de Windsor pour venir en aide au plaignant. L'AI, l'AT no 1, l'AT no 2 et l'AT no 3 sont tous intervenus en réponse à l'appel. Le plaignant a fini par être transporté à l'hôpital où il a été traité pour deux blessures à la cuisse.
Au cours de cette enquête, trois témoins civils, dont le plaignant, et trois agents de police témoins ont été interrogés. L'AI a refusé d'être interrogé, comme c'est son droit légal, mais a fourni ses notes de calepin pour examen. Les enquêteurs avaient également accès au calepin de tous les agents témoins, ainsi qu'aux enregistrements des communications. Les faits ne sont pas contestés.
Le 17 avril 2017, le plaignant s'est poignardé à deux reprises dans la cuisse droite pendant qu'il était au téléphone avec le TC no 1, après avoir envoyé un message texte dans lequel il menaçait de se suicider. Le TC no 1 a immédiatement appelé la police, qui est arrivée à la résidence du plaignant peu après. Le TC no 1 était toujours au téléphone avec le plaignant quand il a entendu la police frapper à la porte et a entendu la police négocier avec le plaignant et le rassurer plusieurs fois que les agents étaient juste là pour son bien‐être et pour l'aider; la police a parlé avec le plaignant pendant environ deux heures avant de pouvoir accéder à l'appartement. Tous les témoins civils, y compris le plaignant, ont précisé que tout au long de l'interaction, les policiers étaient calmes, ne criaient pas et tentaient de gagner la confiance du plaignant.
En réponse à l'appel original, l'AT no 1 et l'AT no 3 étaient les premiers à arriver sur les lieux et ils avaient tenté de convaincre le plaignant d'ouvrir la porte afin qu'ils puissent voir s'il était blessé ou s'il avait besoin d'aide. Après avoir obtenu le passe-partout, les agents ont tenté d'ouvrir la porte, mais le plaignant l'a immédiatement claquée et a fait glisser le pêne dormant de l'autre côté de la porte. Les enregistrements des communications confirment que les agents de police présents ont appelé les services médicaux d'urgence et les services d'incendie pour qu'ils puissent fournir de l'aide au plaignant si nécessaire et qu'ils ont demandé deux boucliers de police, que l'AT no 2 est venu apporter. Après l'arrivée de l'AI, et après de longues négociations et la poursuite des communications entre le TC no 1 et le plaignant par téléphone, le plaignant, qui se trouvait de l'autre côté de la porte, a fini par déverrouiller et ouvrir la porte et les agents sont rapidement entrés et ont sorti le plaignant de l'appartement. Puis, les ambulanciers paramédicaux ont traité le plaignant, qui a été transporté par ambulance à l'hôpital, où l'on a constaté qu'il avait deux blessures auto-infligées à la cuisse droite, lesquelles blessures ont été suturées.
D'après les éléments de preuve que j'ai devant moi, qui sont tous confirmés non seulement par les trois témoins civils, mais également par les enregistrements des communications, et qui correspondent aux témoignages de tous les agents de police témoins, il est clair que les blessures du plaignant ont été causées par sa propre main et qu'on ne peut donc nullement en rejeter la faute sur aucun des agents du SPW qui se sont rendus sur place pour fournir de l'aide au plaignant, négocier avec lui et l'encourager à accepter l'aide qui était offerte et afin de prendre soin de ses blessures. Les mesures prises par les agents qui étaient les premiers à arriver sur place et par l'AI par la suite semblent avoir fait l'objet d'une sérieuse réflexion, tenaient compte de toutes les éventualités et ont joué un rôle crucial en donnant un aboutissement heureux à cette affaire. Il ressort clairement de la preuve que le ton calme et rassurant adopté durant toutes les négociations avec le plaignant est ce qui l'a finalement convaincu d'ouvrir la porte et d'accepter l'aide qui lui était offerte et d'éviter une fin tragique. Il est à noter que le plaignant ne s'est aucunement plaint de son interaction avec la police, précisant qu'il avait été bien traité, et que les déclarations du TC no 1 et du TC no 2 étaient elles aussi libres de toute plainte ou critique concernant le comportement de la police.
En dernière analyse, je suis convaincu, pour les raisons qui précèdent, que l'appréhension du plaignant et la façon dont elle a été exécutée étaient légitimes malgré les blessures qu'il a subies, lesquelles ont été déterminées comme étant non seulement des blessures auto-infligées, mais comme étant survenues avant toute interaction avec la police. De plus, je n'ai aucune hésitation à conclure, dans ce dossier, que non seulement les gestes posés par les agents tombaient dans les limites prescrites par le droit criminel, mais que les agents ont fait preuve d'un bon jugement, de patience et de professionnalisme tout au long de l'intervention et que leurs actions ont été cruciales dans les efforts visant à donner un dénouement heureux à cette affaire. Je conclus par ailleurs que les actions de tous les agents qui sont intervenus étaient conformes aux politiques et aux pratiques exemplaires de la police en ce qui touche le traitement des personnes en situation de crise mentale et qu'elles étaient louables. Par conséquent, il n'y a absolument aucune raison de porter des accusations criminelles en l'espèce et aucune accusation ne sera portée.
Date : 9 janvier 2018
Original signé par
Tony Loparco
Directeur
Unité des enquêtes spéciales
Notes
- 1) [1] Le formulaire 1 établi en vertu de la LSM permet à un médecin de détenir une personne dans un établissement psychiatrique pendant une période allant jusqu’à 72 heures afin de lui faire subir une évaluation psychiatrique. [Retour au texte]
Note:
La version originale anglaise signée du rapport fait autorité. En cas de divergence entre cette version et les versions anglaise ou française en ligne, la version originale anglaise signée du rapport l’emporte.