Rapport du directeur de l’Unité des enquêtes spéciales - Dossier nº 16-TCD-192
Attention :
Cette page affiche un contenu graphique pouvant choquer, offenser et déranger.
Contenus:
Mandat de l’UES
L'Unité des enquêtes spéciales (« l' UES » ou « l'Unité ») est un organisme civil d'application de la loi qui mène des enquêtes sur les incidents à l'origine de blessures graves, de décès ou d'allégations d'agressions sexuelles, dans lesquels des agents de police sont en cause. La compétence de l'Unité s'étend à plus de 50 corps de police municipaux, régionaux et provinciaux dans l'ensemble de l'Ontario.
En vertu de la Loi sur les services policiers, le directeur de l' UES doit déterminer, d'après les preuves recueillies dans une enquête, si un agent a commis une infraction criminelle en rapport avec l'incident faisant l'objet de l'enquête. Si à la suite de l'enquête, il existe des motifs raisonnables de croire qu'une infraction a été commise, le directeur a le pouvoir de déposer un chef d'accusation à l'encontre de l'agent. Subsidiairement, s'il n'y a aucun motif raisonnable de croire qu'une infraction criminelle a été commise, le directeur ne dépose pas d'accusation, mais remet un rapport au procureur général pour l'informer des résultats de l'enquête.
Restrictions concernant la divulgation de renseignements
Loi sur l'accès à l'information et la protection de la vie privée (La « LAIPVP »)
En vertu de l'article 14 de la LAIPVP (article relatif à l'application de la loi), certains renseignements peuvent être omis du présent rapport, notamment s'il est raisonnable de s'attendre à ce que leur divulgation ait pour effet, selon le cas :
- de révéler des techniques et procédés d'enquête confidentiels utilisés par des organismes chargés de l'exécution de la loi;
- de faire obstacle à une question qui concerne l'exécution de la loi ou à une enquête menée préalablement à une instance judiciaire.
En vertu de l'article 21 de la LAIPVP (article relatif à la vie privée), le présent rapport ne contient aucun renseignement personnel protégé, notamment :
- le nom de tout agent impliqué
- le nom de tout agent témoin
- le nom de tout témoin civil
- les renseignements sur le lieu de l'incident
- les déclarations des témoins et les éléments de preuve qui ont été fournis à l' UES à titre confidentiel dans le cadre de l'enquête
- d'autres identifiants susceptibles de révéler des renseignements personnels sur les personnes concernées par l'enquête.
Loi de 2004 sur la protection des renseignements personnels sur la santé (« LPRPS »)
En vertu de la LPRPS, le présent document ne contient aucun renseignement personnel sur la santé de personnes identifiables.
Autres instances, processus et enquêtes
Il se peut que certains renseignements aient été omis du présent rapport parce que leur divulgation pourrait compromettre l'intégrité d'autres procédures liées au même incident, par exemple des procédures pénales, des enquêtes du coroner, d'autres instances publiques ou d'autres enquêtes menées par des organismes d'application de la loi.
Exercice du mandat
La compétence d'enquête de l'Unité se limite aux incidents impliquant la police et qui ont causé un décès ou une blessure grave ou ont donné lieu une allégation d'agression sexuelle.
Les « blessures graves » englobent celles qui sont susceptibles d'avoir des répercussions sur la santé ou le bien-être de la victime et dont la nature est plus que passagère ou insignifiante; elles comprennent les blessures graves résultant d'une agression sexuelle. Il y aura, a priori, présomption de « blessures graves » si la victime est hospitalisée, souffre d'une fracture d'un membre, d'une côte, d'une vertèbre ou du crâne, souffre de brà»lures sur une grande partie du corps, a perdu une partie du corps, la vue ou l'ouà¯e, ou encore si elle allègue qu'elle a été agressée sexuellement. Si un long délai est à prévoir avant que la gravité de la blessure puisse être évaluée, l'Unité devrait en être avisée pour qu'elle puisse surveiller la situation et décider de l'envergure de son intervention.
Le présent rapport a trait à l'enquête menée par l'UES sur la mort d'un homme de 30 ans le 24 juillet 2016, après que la police est intervenue en réponse à un appel téléphonique au numéro 9-1-1 concernant l'utilisation d'une arme à feu.
L’enquête
Notification de l'UES
Le 24 juillet 2016, à 7 h 45, le Service de police de Toronto (SPT) a communiqué avec l'UES pour lui signaler que le 24 juillet 2016, à 5 h 45, le SPT avait reçu un appel d'une femme indiquant qu'elle-même et son copain avaient été blessés par balle et qu'ils étaient dans la secteur de l'avenue Howard Park à Toronto. De nombreux agents sont intervenus en réponse à cet incident À leur arrivée, les agents de police ont observé qu'un homme et une femme se promenaient dans le secteur de l'avenue Howard Park. En se rapprochant, les agents ont réalisé que la femme avait été blessée par balle. À ce moment-là , l'homme a sorti une arme à feu, l'a placé contre sa tête et a fait feu. Puis, la femme et l'homme ont été transportés à l'hôpital.
L'homme a été déclaré mort. La femme a reçu des soins pour ses blessures. Durant une vérification dans une résidence sur l'avenue Howard Park, on a découvert du sang dans un appartement et on pensait que c'était l'endroit où l'homme et la femme avaient subi leurs blessures. L'homme a été désigné comme le plaignant. On a découvert que le plaignant avait également reçu deux coups de feu à la poitrine. La femme a été désignée comme le témoin civil (TC) no 2 et elle avait reçu une balle dans la jambe, et cette balle se trouvait dans son pied. Les lieux de l'incident ont été bouclés.
L'équipe
Nombre d'enquêteurs de l'UES assignés : 6
Nombre d'enquêteurs judiciaires de l'UES assignés : 3
Les enquêteurs judiciaires (EJ) de l'UES se sont rendus sur les lieux et ont identifié et préservé les éléments de preuve. Ils ont documenté les scènes pertinentes liées à l'incident au moyen de notes, de photographies, de vidéographie, de croquis et de mesures. Les enquêteurs judiciaires ont assisté à l'autopsie et l'ont enregistrée et ont aidé à soumettre les éléments de preuve au Centre des sciences judiciaires (CSJ).
Plaignant
Homme de 30 ans, décédé
Témoins civils (TC)
TC no 1 A participé à une entrevue
TC no 2 A participé à une entrevue
TC no 3 A participé à une entrevue
TC no 4 A participé à une entrevue
TC no 5 A participé à une entrevue
TC no 6 N'a pas participé à une entrevue[1]
TC no 7 N'a pas participé à une entrevue[2]
TC no 8 N'a pas participé à une entrevue[3]
TC no 9 N'a pas participé à une entrevue
TC no 10 N'a pas participé à une entrevue[4]
Agents témoins (AT)
AT no< 1 A participé à une entrevue
AT no< 2 A participé à une entrevue
AT no< 3 A participé à une entrevue
AT no< 4 A participé à une entrevue
AT no< 5 A participé à une entrevue
AT no< 6 A participé à une entrevue
Agent impliqué (AI)
AI N'a pas consenti à participer à une entrevue et à remettre ses notes, comme la loi l'y autorise en tant qu'agent impliqué
Éléments de preuve
Les lieux de l'incident
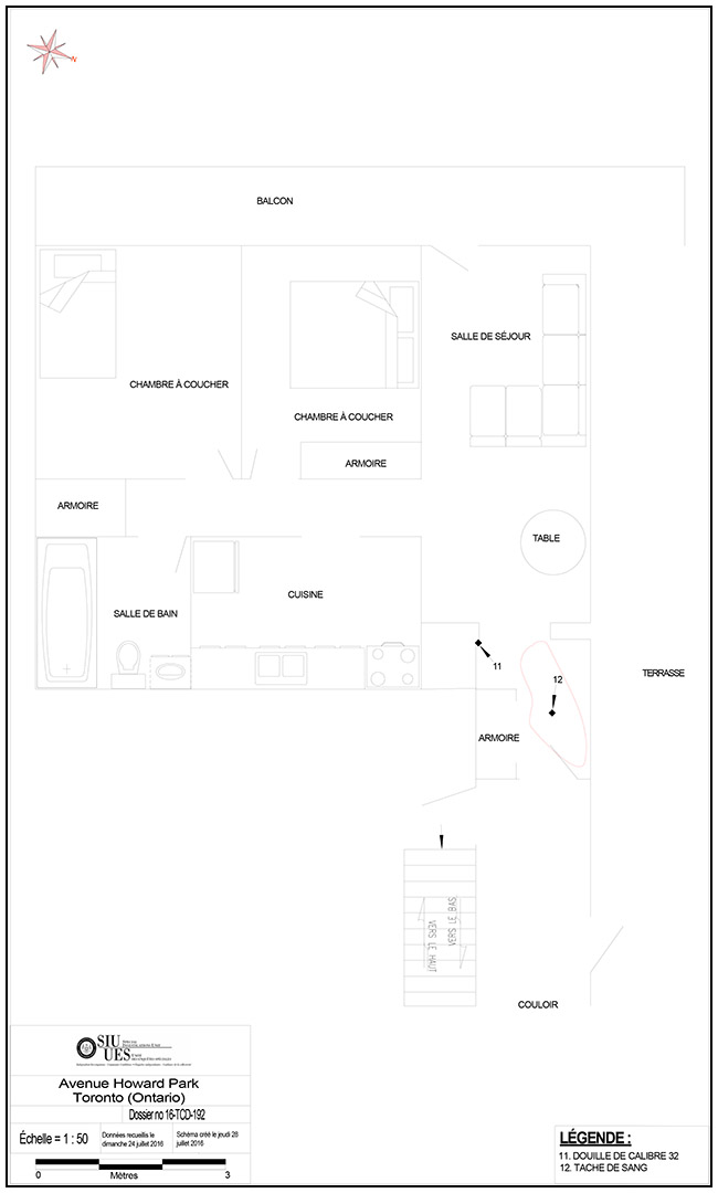
Le 24 juillet 2016, à 10 h 25, les EJ de l'UES sont arrivés sur les lieux de l'incident sur l'avenue Howard Park. Les lieux avaient été bouclés par le SPT. Sur le trottoir sud devant le 29, avenue Howard Park, il y avait un bassin de sang. Des débris de fournitures médicales étaient éparpillés sur le sol dans le secteur. Du sang avait été projeté vers le nord du trottoir sur les plantes situées dans la cour avant au 29, avenue Howard Park. Il y avait un gros bassin de sang sur la bordure sculptée et sur le sol au côté sud de la cour, près du trottoir. Il y avait une douille de calibre 32 de couleur laiton sur la chaussée du côté nord, au sud des taches de sang sur le trottoir.
La scène a été photographiée et filmée à l'aide d'une caméra vidéo, et un schéma des lieux a été créé au moyen du logiciel Total Station.
Les EJ de l'UES ont aussi examiné des lieux à l'intérieur d'un immeuble d'habitation situé sur l'avenue Howard Park et plus particulièrement l'ascenseur et l'intérieur de l'appartement du TC no 2. L'entrée de l'appartement comportait des indices qu'une altercation y avait eu lieu. Sur le revêtement du sol, il y avait de nombreuses taches de sang qui comportaient des empreintes de chaussures étalées. Une bouche de chauffage sur le mur nord du vestibule était détachée. Des taches de sang projetées étaient visibles vers le sud-ouest et sud-est, depuis le vestibule dans la direction de l'appartement. On a trouvé une douille de calibre 32 de couleur laiton sur le plancher dans le coin sud-ouest du vestibule.
Schéma des lieux
Voici un schéma des lieux sur l'avenue Howard Park.

Voici un schéma de l'appartement du TC no 2 :

Preuve matérielle
Arme à feu
Le 24 juillet 2016, à 11 h 19, les EJ de l'UES ont obtenu le pistolet et le chargeur saisis par le SPT par terre à proximité du plaignant. Le pistolet et le chargeur, qui se trouvaient dans des sacs en papier séparés, ont été pris sur le siège arrière d'une voiture de patrouille du SPT. Un agent de police du SPT assurait la garde de la voiture de patrouille. L'arme a ensuite été examinée et identifiée comme un Cobra 32 modèle FS32, numéro de série FS011587. La culasse était vide, et le chargeur avait été retiré. Le chargeur comprenait quatre cartouches de calibre 32 en laiton. Voici une photographie de l'arme à feu :

à‰léments de preuve médico-légaux
Le 5 aoà»t 2016, les EJ de l'UES ont soumis au CSJ pour examen le pistolet Cobra modèle FS32, le chargeur comportant quatre projectiles non utilisés et les deux douilles vides récupérées sur le trottoir devant le 29, avenue Howard Park, et dans l'appartement du TC no 2.
Le 8 aoà»t 2016, le sang du plaignant a été soumis au CSJ à des fins de comparaison avec tout ADN susceptible de se trouver sur le pistolet Cobra modèle FS32.
Les résultats de l'analyse du pistolet aux fins de comparaison de l'ADN ont révélé que le plaignant ne pouvait être exclu comme source des profils génétiques dans du sang prélevé au milieu et au haut de la poignée du pistolet et sur le chargeur et dans l'ADN prélevé sur le chargeur.
Témoignage d'expert
Le 25 juillet 2016, un médecin légiste a procédé à une autopsie du plaignant au Bureau du coroner en chef à Toronto. Le médecin légiste a noté dans son rapport qu'il y avait une blessure d'entrée de balle à la tempe droite et une blessure de sortie de balle à la tempe gauche du plaignant.
Dans le résumé et la section réservée à son opinion dans le rapport, le médecin légiste a précisé que le plaignant avait une blessure de contact à la tête et une blessure de contact à l'abdomen. La première blessure était une blessure mortelle, tandis que la blessure à l'abdomen était seulement superficielle. La mort du plaignant était attribuée à une blessure par balle à la tête. Il a noté que la tempe est souvent privilégiée par les personnes qui veulent se suicider en utilisant une arme à feu.
Preuve vidéo/audio/photographique
Séquences vidéo
Le 30 aoà»t 2016 ou vers cette date, l'UES a reçu les enregistrements vidéo des caméras situés dans quatre voitures de patrouille :
- La voiture de patrouille des AT nos 2 et 3, qui était la première à arriver, arrive sur les lieux à 5 h 27 m 34 s. Les agents ont laissé leur caméra en mode d'enregistrement et à 5 h 28 m 15 s, les AT nos 2 et 3 commencent à courir dans la direction est, vers un camion-incendie. L'enregistrement de la caméra ne montre pas le tireur, mais il enregistre la réaction des agents de police lorsqu'ils entendent le coup de feu tiré par l'arme à feu du plaignant
- La voiture de patrouille des AT nos 5 et 6 est la deuxième à arriver sur les lieux à 5 h 27 m 59 s, et les agents la stationnent derrière la voiture de patrouille des AT nos 2 et 3. La caméra dans la voiture de patrouille des AT nos 5 et 6 filme l'arrière de la voiture de patrouille des AT nos 2 et 3 et n'enregistre rien d'utile
- La voiture de patrouille de l'AI est la troisième à arriver sur les lieux, à 5 h 28 m 04 s. L'AI a garé sa voiture de patrouille derrière celle des AT nos 5 et 6. La caméra dans la voiture de patrouille de l'AI filme l'arrière de la voiture de patrouille des AT nos 5 et 6 et n'enregistre rien d'utile, et
- La voiture de patrouille de deux autres agents de police non désignés est la quatrième voiture de patrouille à arriver sur les lieux à 5 h 28 m 26 s. Ils se garent derrière la voiture de patrouille de l'AI. La caméra dans la voiture de patrouille des agents désignés filme l'arrière de la voiture de patrouille de l'AI et n'enregistre rien d'utile
Enregistrements des communications
Le 26 juillet 2016, l'UES a obtenu une copie de l'enregistrement des communications pertinentes du SPT dans le cadre de l'enquête sur cet incident.
- L'enregistrement commence à 5 h 19 m 54 s, quand le TC no 2 a appelé le numéro 9-1-1. Le TC no 2 a signalé qu'un inconnu était venu à son immeuble et elle a dit qu'elle avait besoin d'une ambulance
- Le TC no 2 a poursuivi en déclarant qu'une personne inconnue était arrivée dans une voiture et avait commencé à tirer des coups de feu
- Le TC no 2 a déclaré que cette personne s'était rendue à son appartement et qu'elle ne savait pas ce qui se passait
- Le TC no 2 a déclaré qu'elle et son copain avaient été touchés par des balles et qu'elle avait été touchée à la jambe
- Lorsqu'on a demandé au TC no 2 où son copain avait été blessé par balle, elle a déclaré qu'elle ne savait pas et la communication s'est arrêtée à ce moment-là , et
- À 5 h 27 m 48 s, un agent de police a déclaré qu'un homme venait de s'être tiré une balle
Documents obtenus du Service de police
Sur demande, l'UES a obtenu les documents suivants du SPT et puis les a examinés :
- Données du Système de positionnement mondial (GPS) et de localisation automatique de véhicules (LAV)
- Enregistrements vidéo provenant des caméras dans les véhicules – quatre voitures de patrouille
- Enregistrements des communications
- COMM-Résumé de la conversation
- Répartition assistée par ordinateur Intergraph (ICAD)
- ICAD-Rapport des détails de l'événement
- Notes des AT nos 1, 2, 3, 4, 5 et 6
- Fiches de service – pelotons divisionnaires, et
- Document papier des antécédents d'une personne (renseignements généraux du SPT sur le plaignant)
Description de l’incident
Juste avant 5 h 30, le 24 juillet 2016, le plaignant se trouvait dans l'appartement du TC no 2, une femme, et l'a blessée par balle à la partie supérieure de la cuisse et a fait feu sur son propre abdomen. Puis, le plaignant et le TC no 2 ont quitté l'appartement et le TC no 2 a téléphoné au numéro 9-1-1 une fois qu'ils étaient à l'extérieur. Le TC no 2 a dit au préposé au numéro 9-1-1- qu'elle et le plaignant avaient été blessés par balle.
En l'espace de quelques minutes après que le plaignant et le TC no 2 étaient sortis de l'immeuble, des membres du personnel des Services d'interventions médicales d'urgence de Toronto et du Service d'incendie de Toronto sont arrivés sur les lieux, suivis d'agents du SPT. En pleine vue du personnel d'urgence et des agents de police, le plaignant a appuyé son arme contre sa tempe et a fait feu une seule fois. Aucun des agents n'avait parlé au plaignant et n'avait dégainé son arme à feu pour la pointer vers le plaignant au moment de l'incident. Le plaignant a été transporté à l'hôpital et déclaré décédé d'une blessure par balle à la tête.
Analyse et décision du directeur
Le 24 juillet 2016, à environ 5 h 19 m 54 s, le préposé au numéro 9-1-1 au SPT a reçu un appel du TC no 2 qui lui a signalé qu'elle-même et le plaignant avaient été blessés suite à l'utilisation d'une arme à feu et a indiqué qu'ils avaient besoin d'une ambulance dans le secteur de l'avenue Howard Park, dans la ville de Toronto. Par conséquent, un appel a été diffusé demandant au SPT, aux Services d'interventions médicales d'urgence de Toronto et au Service d'incendie de Toronto de se rendre à l'adresse de l'incident. Sept agents du SPT, y compris l'AI, se sont rendus sur les lieux. Par la suite, le plaignant a été transporté à l'hôpital par ambulance, où il a été déclaré décédé d'une blessure par balle à la tête.
Au cours de cette enquête, en plus du TC no 2, l'UES s'est entretenue avec trois membres du personnel d'urgence[5] et six agents de police témoins. L'AI a refusé d'être interviewé, comme la loi l'y autorise, et il n'a pas fourni ses notes pour examen.
Si l'on se fonde sur la preuve fournie par tous les témoins interviewés, il n'y a aucune contestation quant aux faits qui sont survenus à l'extérieur sur l'avenue Howard Park, le 24 juillet 2016.
À 5 h 19 m 54 s, le TC no 2 a appelé le numéro 9-1-1 et a demandé qu'une ambulance soit envoyée parce qu'[traduction] « un inconnu est venu à notre immeuble, nous avons besoin d'une ambulance ». On entend également une voix masculine tout juste après que la connexion a été établie, mais avant que le préposé au numéro 9-1-1 prenne la parole. Après avoir été aiguillé vers le répartiteur des ambulances, le TC no 2 a poursuivi en indiquant qu'il fallait envoyer une ambulance à son appartement sur l'avenue Howard Park et qu'une personne inconnue était arrivée à bord d'une voiture, s'était rendue à l'étage et avait commencé à tirer des coups de feu et qu'elle et son copain avaient été touchés. Elle a indiqué qu'elle avait été blessée par balle à la jambe et qu'elle ne savait pas où son copain avait été blessé. Le TC no 2 a ensuite raccroché. Le répartiteur a tenté de rappeler le TC no 2, mais elle n'a pas répondu.
Les témoins interviewés qui faisaient partie du personnel d'urgence étaient cohérents dans leur description que peu après leur arrivée sur l'avenue Howard, le plaignant avait porté la main à la tête et qu'ils avaient entendu un coup de feu. Le plaignant est tombé au sol, après quoi le TC no 2 est venu vers eux en courant et a dit que le plaignant s'était tiré une balle. Les membres du personnel d'urgence qui étaient témoins de l'incident étaient situés entre le plaignant et les agents de police qui venaient d'arriver. On n'a vu aucun agent près du plaignant avant qu'il se tire une balle, et aucun témoin parmi le personnel d'urgence n'a vu un agent dégainer son arme à feu.
L'AT no 5 a indiqué que presque au même moment où il était sorti de sa voiture de patrouille sur l'avenue Howard Park, il avait entendu un coup de feu et avait vu le TC no 2 marcher vers lui et a entendu cette femme dire que le plaignant venait de s'être tiré une balle, auquel moment l'AT no 5 a dégainé son pistolet de service et s'est approché de l'endroit où le plaignant gisait sur le sol. Il a vu un pistolet noir et argenté juste à l'est du corps du plaignant.
L'AT no 6 a vu le TC no 2 courir vers l'ouest sur l'avenue Howard Park en disant [traduction] « aidez-le », quand il a entendu un coup de feu provenant d'une arme à feu de plus petit calibre dans un secteur à l'est d'où il se trouvait. L'AT no 6 a vu les pompiers se mettre à l'abri et a dégainé son arme à feu pour des raisons de sécurité et a couru vers l'est au-delà du camion-incendie vers l'endroit d'où était venu le coup de feu. L'AT no 6 a vu le corps du plaignant, s'est approché de lui et a observé une arme de poing à deux pieds (0,61 mètre) du torse du plaignant. Il a ensuite vu l'AT no 5 éloigner le pistolet en lui donnant un coup de pied. Des membres du personnel d'urgence sont ensuite venus et ont fait des tentatives de réanimation cardiorespiratoire sur le plaignant.
L'AT no 2 a indiqué qu'il avait commencé à marcher dans la direction du plaignant et du TC no 2, lorsqu'il a entendu le TC no 2, qui marchait vers l'ambulance avec une blessure à la jambe, dire [traduction] « Il est fou, il s'est tiré une balle », auquel moment le TC no 2 a entendu un coup de feu. L'AT no 2 a indiqué qu'il avait alors dégainé son arme à feu et qu'il avait tourné le regard vers le plaignant, qui se trouvait à une trentaine de pieds (9,14 mètres) de lui et qu'il l'avait vu chanceler et tomber au sol. L'AT no 2 a alors pointé son arme à feu vers le plaignant tandis que les AT nos 5 et 6 se sont approchés et ont écarté l'arme à feu. Il a ensuite informé le service de répartition que le plaignant s'était tiré une balle. D'après l'enregistrement, cet appel avait été reçu à 5 h 27 m 48 s.
L'AT no 3 a indiqué qu'il parlait avec les ambulanciers lorsqu'il a vu le TC no 2 marcher vers l'immeuble d'appartements sur l'avenue Howard Park, et puis vers l'ambulance. Il a entendu le TC no 2 dire à trois reprises qu'elle avait besoin d'aide et il a ensuite entendu un coup de feu venant de la direction où le TC no 2 avait été précédemment. L'AT no 3 a aidé le TC no 2 à monter à l'arrière de l'ambulance et il a entendu quelqu'un dire qu'[traduction] « il s'est tiré une balle ». L'AT no 3 a alors dégainé son arme à feu, mais on lui a dit de rester avec le TC no 2. Le TC no 2 lui a dit que le plaignant était fâché contre elle pour être sortie et qu'il avait pointé une arme vers elle et avait tiré une fois sur elle et l'avait appuyé contre sa propre tête pendant 20 minutes dans l'appartement.
Le médecin légiste a procédé à l'autopsie du plaignant et a déterminé que la cause du décès était une blessure de contact à la tête. Il a également constaté que le plaignant avait une blessure de contact superficielle à l'abdomen. Le médecin légiste était d'avis que la tempe est un endroit courant pour les blessures par balle lors de suicides.
Dans ce dossier, je conclus que la mort du plaignant a été causée par ses propres actions sans que les policiers soient impliqués directement; que les agents présents s'acquittaient de leurs fonctions comme c'était nécessaire pour intervenir suite à l'appel au numéro 9-1-1; et qu'aucun agent n'a eu de contact physique ni d'interaction verbale avec le plaignant qui aurait pu, de quelque façon que ce soit, inciter le plaignant a posé les gestes qu'il a posés. Un examen de l'ensemble de la preuve révèle qu'il est clair qu'aucun agent n'a dégainé son arme avant d'avoir entendu le coup de feu qui a causé la mort du plaignant et, sur la foi de la preuve fournie par le personnel d'urgence sur les lieux, il est clair qu'aucun agent de police n'était à proximité du plaignant au moment du coup de feu et les agents de police n'étaient pas en mesure de tirer un tel coup de feu, puisque des membres du personnel d'urgence se tenaient entre la police et le plaignant. Les gestes du plaignant ont clairement été posés sans avertissement ni provocation et étaient complètement imprévus pour n'importe lequel des membres des services d'urgence ou des agents présents. Bien sà»r, nous ne pouvons savoir avec certitude ce qui se passait dans l'esprit du plaignant qui le pousserait à poser un geste aussi radical et meurtrier, mais il ne fait aucun doute qu'on ne peut en rejeter la faute sur aucun des agents de police présents, qui s'acquittaient simplement de leurs fonctions comme ils étaient tenus de le faire. Il importe de souligner qu'à aucun moment, des allégations n'ont été formulées à l'encontre de ces agents par qui que ce soit, concernant d'éventuels gestes inappropriés de leur part, et je suis convaincu, pour des motifs raisonnables, que les actions des agents étaient dans les limites prescrites par le droit criminel et qu'il n'y a pas de motifs justifiant des accusations en l'espèce.
Date : 20 octobre 2017
Original signé par
Tony Loparco
Directeur
Unité des enquêtes spéciales
Notes
- 1) [1] Le TC no 6 a été identifié lors d’une visite des habitants aux alentours, mais n’a pas vu l’incident [Retour au texte]
- 2) [2] Le TC no 7 était un employé du Service d’incendie de Toronto et n’a fourni qu’une déclaration écrite. [Retour au texte]
- 3) [3] Les TC nos 8 et 9 étaient des employés des Services d’interventions médicales d’urgence de Toronto et ont refusé de faire une déclaration. Ils ont toutefois chacun fourni un rapport d’incident. [Retour au texte]
- 4) [4] Le TC no 10 était membre des Services d’interventions médicales d’urgence de Toronto et a refusé de faire une déclaration. [Retour au texte]
- 5) [5] Malheureusement, cinq autres membres du personnel d’urgence ont refusé de faire des déclarations, même s’ils avaient connaissance d’importants éléments de preuve. Heureusement, l’UES avait accès à leurs déclarations écrites, qui corroboraient dans une large mesure les declarations des autres témoins. [Retour au texte]
Note:
La version originale anglaise signée du rapport fait autorité. En cas de divergence entre cette version et les versions anglaise ou française en ligne, la version originale anglaise signée du rapport l’emporte.